Bénéficiez des services de nos partenaires locaux soigneusement sélectionnés
pour vous accompagner dans votre parcours d'achat immobilier

Maison de bourg (100m2) avec petit garage et cave à Ceyrat

— Ceyrat 63122 —
160 000 €
100 m²
3 pièces

Nos partenaires locaux

JAUDE Immobilier vous propose en EXCLUSIVITÉ cette maison de bourg mitoyenne située Place du Mas à Ceyrat, à proximité immédiate des écoles, commerces et transports en commun.
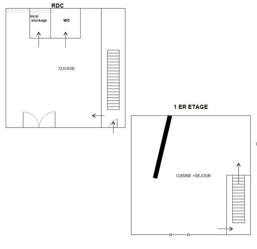
Construite vers 1900, cette maison s’élève sur trois niveaux d' 33 m2 chacun. Elle dispose également d’un sous-sol complet.
Points forts :
- Rez-de-chaussée : pièce de vie avec cuisine ouverte, poêle à bois installé en 2018.
- 1er étage : dégagement, deux chambres dont une avec rangement, salle d’eau avec fenêtre et WC.
- 2ᵉ étage : grande pièce sous combles avec Velux, salle d’eau avec WC, débarras, grenier pour le rangement.
- Sous-sol : cave et petit garage.
Des travaux de rénovation sont à prévoir, notamment sur le plan énergétique (DPE classé G). Un audit énergétique complet a été réalisé et pourra être fourni. Le tableau électrique a été refait (2023).
Environnement et commodités : La maison bénéficie d’un emplacement central dans le bourg de Ceyrat, avec accès immédiat aux écoles, commerces de proximité et lignes de bus. Accès rapide aux autoroutes (A75 / A89) et à Clermont-Ferrand en quelques minutes.
Informations pratiques :
- Année de construction : 1900
- DPE : G - Audit énergétique réalisé (disponible sur demande)
- Quartier : Centre-bourg Place du Mas à Ceyrat
- Taxe foncière : 1094 €
Honoraires agence à la charge du vendeur
Pour plus d’informations sur les risques auxquels ce bien est exposé, consultez le site Géorisques : www.georisques.gouv.fr (décret no2022-1289 du 1er octobre 2022).
Pour toute information ou visite, Véronique Hutin Négociatrice & Associée JAUDE Immobilier [Coordonnées masquées] [Coordonnées masquées]
Voir plus

Référence: 1595
Honoraires à la charge du vendeur.
Barème des honoraires
DPE
A
B
C
D
E
F
G
GES
A
B
C
D
E
F
G
Maison à CEYRAT
Maison à CEYRAT
Maison à CEYRAT
Maison à CEYRAT
Maison à CEYRAT
Maison à CEYRAT
Maison à CEYRAT
Maison à CEYRAT
Maison à CEYRAT
Maison à CEYRAT
Maison à CEYRAT
Maison à CEYRAT
Géorisques

Les informations sur les risques auxquels ce bien est exposé sont disponibles sur le site Géorisques : www.georisques.gouv.fr

Ce site est protégé par hCaptcha Politique de confidentialité et Conditions d’utilisation s’appliquent.

En poursuivant votre navigation sans modifier vos paramètres, vous acceptez l'utilisation de cookies susceptibles de réaliser des statistiques de visite. Cliquez ici pour plus d'informations