Bénéficiez des services de nos partenaires locaux soigneusement sélectionnés
pour vous accompagner dans votre parcours d'achat immobilier

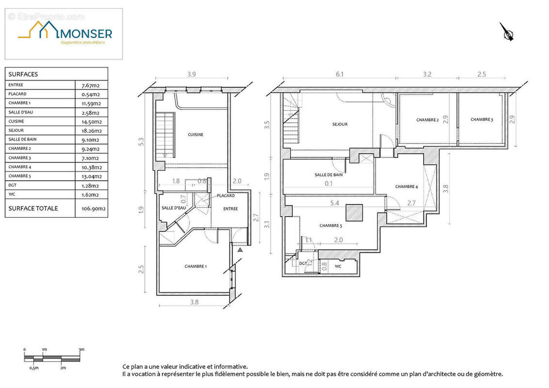
Appartement 107m² à paris 17e arrondissement

— Paris-17e 75017 —
651 000 €
107 m²
7 pièces

Nos partenaires locaux
Batignolles, dans une charmant impasse nommée "Villa Jacquemont" à 4minutes du métro LA Fourche, 13 minutes de Pont Cardinet et 9 minutes de place de Clichy. Immeuble charmant, bien entretenu, sécurisé par interphone. Traversant, sur rue et cour, découvrez un appartement de 110m² au sol et 107m² loi carrez réparti sur deux niveaux de 36m² au rez-de-chaussée et 70m² au niveau inférieur. Il comprend au 1er niveau: une entrée équipée d'un placard de rangements, une salle d'eau avec WC, une chambre sur cour de 11.5m² et une pièce de vie sur rue avec cuisine US de 15m². Au sous-sol accessible part 2 escaliers distincts, nous trouvons une pièce de vie de 20m² éclairée par un puit de lumière naturelle avec ouverture. 3 chambres de 9m², 10m² et 13m², une salle de bains, un WC séparé. Le bien est sain, aucune humidité apparente ou olfactive. Il nécessite des travaux de rafraichissement et d'isolation thermique pour améliorer sa note énergétique. Le chauffage et l'eau chaude sont collectifs fuel. comptez 445€ de charges par mois et 1673€ de taxe foncière.
Contactez nous: ERA Batignolles 97bis rue Legendre 75017 PARIS. Tél: [Coordonnées masquées] Mail: [Coordonnées masquées]
L'Etat des Risques et Pollution peut être consulté sur https://www.georisques.gouv.fr
Voir plus

Référence: 4312
DPE
A
B
C
D
E
F
G
GES
A
B
C
D
E
F
G

Prêt immobilier

Vous souhaitez connaître votre capacité d’emprunt et trouver le meilleur crédit immobilier ?
Réaliser une simulation gratuite

Appartement à PARIS-17E
Appartement à PARIS-17E
Appartement à PARIS-17E
Appartement à PARIS-17E
Appartement à PARIS-17E
Appartement à PARIS-17E
Appartement à PARIS-17E
Appartement à PARIS-17E
Appartement à PARIS-17E
Appartement à PARIS-17E
Appartement à PARIS-17E
Appartement à PARIS-17E
Appartement à PARIS-17E
Appartement à PARIS-17E
Appartement à PARIS-17E
Appartement à PARIS-17E
Appartement à PARIS-17E
Ce site est protégé par reCAPTCHA la Politique de confidentialité et les Conditions d’utilisation de Google s’appliquent.
Obtenir un prêt immobilier au meilleur taux ?

En poursuivant votre navigation sans modifier vos paramètres, vous acceptez l'utilisation de cookies susceptibles de réaliser des statistiques de visite. Cliquez ici pour plus d'informations