Emplacement restaurant, l'hôtel le b&b alès pôle mécanique

— Saint-Martin-De-Valgalgues 30520 —
107 500 €
2 pièces
parkingbalcon/terrasseaccès handicapé

En exclusivité

Je vous propose une opportunité unique!

( Droit au bail )pour un restaurant dans l'enseigne de l'hôtel le B&B du Pôle Mécanique d'ALES Cévennes.
Une clientèle assurée, grâce à l'hôtel et ses 76 chambres, ainsi qu'au pôle mécanique et à la zone industrielle proche.

Caractéristiques :

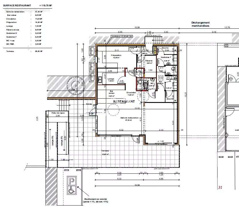
Surface totale du restaurant : 119 m2 avec une terrasse de 69 m2.
Local en construction, livraison prévue pour septembre octobre 2025.
Il sera livré, peint en blanc avec toutes les normes actuelles pour la restauration .( sans équipements ).
Il possèdera: comptoir, sanitaires, vestiaire, accès livraison, accès PMR, parking, gaz de ville et climatisation réversible .

Prix :129000 euros TTC frais d'agence inclus . ( La TVA est récupérable )

Contactez nous dès maintenant pour plus d'informations ou pour organiser une visite.
Voir plus

Référence: 2434
Barème des honoraires

Prêt immobilier

Vous souhaitez connaître votre capacité d’emprunt et trouver le meilleur crédit immobilier ?
Réaliser une simulation gratuite

Commerce à SAINT-MARTIN-DE-VALGALGUES
Commerce à SAINT-MARTIN-DE-VALGALGUES
Commerce à SAINT-MARTIN-DE-VALGALGUES
Commerce à SAINT-MARTIN-DE-VALGALGUES
Commerce à SAINT-MARTIN-DE-VALGALGUES
Ce site est protégé par reCAPTCHA la Politique de confidentialité et les Conditions d’utilisation de Google s’appliquent.
Obtenir un prêt immobilier au meilleur taux ?

En poursuivant votre navigation sans modifier vos paramètres, vous acceptez l'utilisation de cookies susceptibles de réaliser des statistiques de visite. Cliquez ici pour plus d'informations