Bénéficiez des services de nos partenaires locaux soigneusement sélectionnés
pour vous accompagner dans votre parcours d'achat immobilier

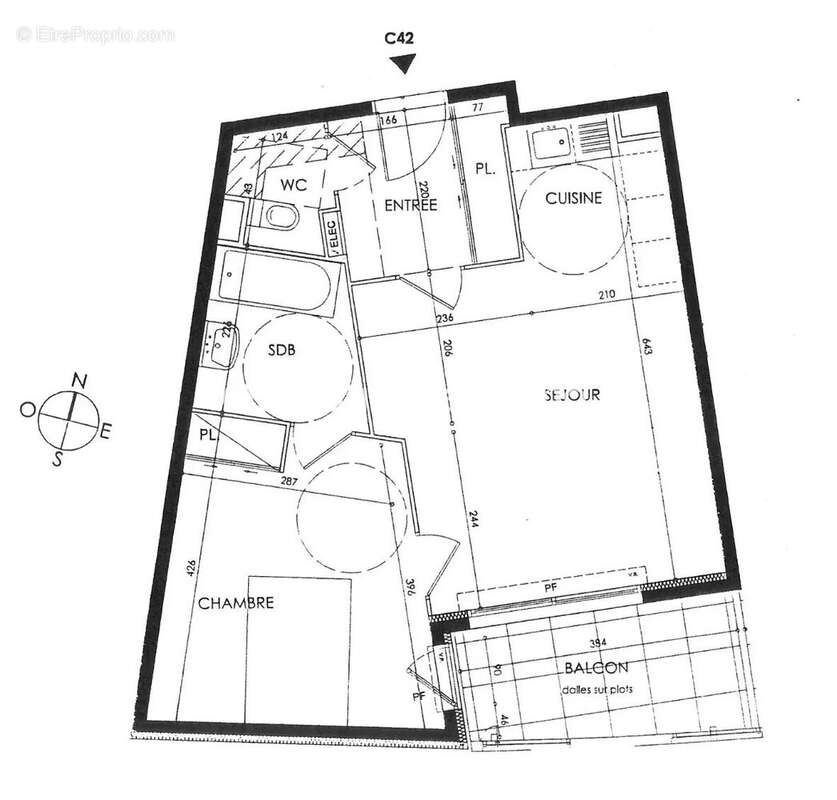
Nice Méridia 2 pièces en étage terrasse + possibilité garage

— Nice 06200 —
220 000 €
48 m²
2 pièces
parkingbalcon/terrasseascenseuraccès handicapé

Nos partenaires locaux
EXCLUSIVITÉ – Nice Méridia / JOIA- Superbe 2 pièces en étage élevé avec terrasse – Résidence récente

Dans le dynamique quartier de JOIA, à proximité du futur campus universitaire et de toutes les commodités, découvrez ce lumineux 2 pièces de 49 m² env, situé en étage élevé d’une copropriété sécurisée récente (2012).

Cet appartement bénéficie d’une belle luminosité grâce à son exposition et ses grandes ouvertures. Il se compose d’une spacieuse pièce de vie avec cuisine américaine, ouverte sur une agréable terrasse de 6 m², idéale pour vos moments de détente. La chambre, elle aussi tournée vers l’extérieur, profite de la même ouverture. L’agencement est complété par une salle d’eau, des toilettes séparées avec lave-mains, ainsi que de nombreux rangements sur mesure. Le tout est climatisé pour un confort optimal, avec la possibilité d’acquérir un garage en supplément.

Atouts clés :
-Quartier en plein essor, proche tramway (Ligne 3)
-Résidence sécurisée (2012)
-Étage élevé, appartement d’angle lumineux
-Terrasse de 6 m² accessible du séjour et chambre
-Nombreux rangements sur mesure
-Climatisation
-Possibilité de garage

Accès rapide à l’aéroport, commerces et axes routiers

Une belle opportunité à saisir, aussi bien pour un investissement que pour une résidence principale. À visiter sans tarder !

Bien soumis à la copropriété
Nombre de lots:152 dont XX appartements
charges courantes annuelles: 1740€

Les informations sur les risques auxquels ce bien est exposé sont disponibles sur le site Géorisques : georisques.gouv.fr.
Voir plus

Référence: 85996204
DPE
A
B
C
D
E
F
G
Appartement à NICE
Appartement à NICE
Appartement à NICE
Appartement à NICE
Appartement à NICE
Appartement à NICE
Appartement à NICE
Appartement à NICE
Géorisques

Les informations sur les risques auxquels ce bien est exposé sont disponibles sur le site Géorisques : www.georisques.gouv.fr

Ce site est protégé par hCaptcha Politique de confidentialité et Conditions d’utilisation s’appliquent.

En poursuivant votre navigation sans modifier vos paramètres, vous acceptez l'utilisation de cookies susceptibles de réaliser des statistiques de visite. Cliquez ici pour plus d'informations