belle maison familiale à réinventer – potentiel xxl – quartier résidentiel du tremblay

— Champigny-Sur-Marne 94500 —
435 000 €
117 m² / 372 m²
6 pièces
parkingbalcon/terrasse

Vous rêvez d'un projet où tout est possible ? Cette maison des années 40 n'attend plus que vos idées pour retrouver toute sa splendeur. Située rue Eugène Pottier, non loin du Parc du Tremblay, elle offre le combo parfait : résidentiel, jardin généreux et volume rare… à deux pas de Paris !

Ce que vous allez adorer:
Parcelle de 372 m² avec jardin plat et dépendance (~15 m² ancienne porcherie).

Toiture refaite en 2014 → zéro gros œuvre à prévoir de ce côté-là.

Chaudière gaz Frisquet de 2017, entretenue : vous partez sur de bonnes bases techniques.

Sous-sol total : garage, buanderie, stockage, chaufferie et pièce avec arrivée d'eau ouvrant sur le jardin (future cuisine d'été ou chambre indépendante).

Configuration parfaite pour la colocation : 2 chambres + 1 salle de bain par niveau, circulation fluide.

Distribution actuelle (à réinventer selon vos envies):
Rez-de-chaussée:
Entrée dégagée.
Séjour lumineux ouvrant sur un large balcon filant.
Cuisine indépendante (accès balcon également).
WC séparés
Chambre 1 (belle surface) + Chambre 2, toutes deux côté jardin.
Salle de bains avec baignoire & WC

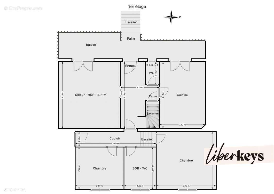
1er étage:
Grande pièce palière (bureau, salle TV ou coin bibliothèque).
Chambre 3 côté rue, Chambre 4 côté jardin.
Petit espace de stockage supplémentaire (futur dressing?).
Salle de bains avec baignoire & WC

Sous-sol total:
Garage (1 véhicule).
Buanderie.
Chaufferie (chaudière gaz 2017).
Stockage.
Pièce avec arrivée d'eau et accès direct jardin (cuisine d'été, 5ème chambre ?).

Pourquoi c'est un vrai bon plan ?
Potentiel d'aménagement énorme : jusqu'à 5 chambres, pièces de vie ouvertes, home-office, coliving…

Structure saine : toiture récente, assainissement conforme.

Investisseur avisé : rentabilité boostée grâce aux volumes et à l'agencement de la maison (2 chambres et 1 salle de bains par niveau, 2 entrées indépendantes).

Famille nombreuse : chacun son espace, jardin sécurisé sans vis-à-vis, écoles, Parc et activités sportives à pied.

Travaux à prévoir:
La maison est à remettre intégralement au goût du jour (isolation, électricité, menuiseries, plomberie, cuisine, sdb). Un budget rénovation est à anticiper, mais la base est solide : de quoi créer votre cocon sur-mesure sans mauvaise surprise structurelle. Audit énergétique et informations travaux disponibles.

Quartier résidentiel & verdoyant :
école maternelle Léon Frappié à 600 mètres.
école élémentaire Jean Jaurès à 400 mètres.
école et collège privés Sainte-Thérèse à 1000 mètres.
collège Lucie Aubrac à 1500 mètres.
parc du Tremblay à 500 mètres.
Tous commerces à moins de 10 minutes à pied.
RER E Les boullereaux à 1400 mètres.
Bus 106, 116 et 317 à 600 mètres: 2 arrêts pour rejoindre le RER E les Boullereaux, 3 arrêts pour rejoindre le RER E Nogent-Le Perreux, ou 6 arrêts pour rejoindre le RER A Joinville-le-Pont.
axes routiers rapides vers A4/A86.

On résume:
Maison individuelle 5/6 pièces – très gros potentiel.
2 niveaux habitables + sous-sol total.
Parcelle 372 m², dépendance 15 m².
Toiture 2014 – Chaudière gaz 2017.
Quartier Tremblay, Champigny-sur-Marne (résidentiel & verdoyant).
Proximité transports et établissements scolaires.
Idéal famille ou investissement colocation.

Laissez parler votre imagination, faites chiffrer vos artisans et venez découvrir sur place tout ce que ce bien peut offrir. Les volumes, le jardin et l'emplacement parlent d'eux-mêmes !

Une visite ? Contactez-moi ! Dorin Amandine: [Coordonnées masquées].
Agent commercial immatriculé au RSAC de Créteil sous le numéro 827 441 999. Référence annonce : DOM19585.
Je reverse 1% de mes honoraires à l'association Un Petit Bagage d'Amour.
Honoraires à la charge du vendeur.
Voir plus

Référence: DOM19585
Honoraires à la charge du vendeur.
DPE
A
B
C
D
E
F
G
GES
A
B
C
D
E
F
G

Prêt immobilier

Vous souhaitez connaître votre capacité d’emprunt et trouver le meilleur crédit immobilier ?
Réaliser une simulation gratuite

Maison à CHAMPIGNY-SUR-MARNE
Maison à CHAMPIGNY-SUR-MARNE
Maison à CHAMPIGNY-SUR-MARNE
Maison à CHAMPIGNY-SUR-MARNE
Maison à CHAMPIGNY-SUR-MARNE
Maison à CHAMPIGNY-SUR-MARNE
Maison à CHAMPIGNY-SUR-MARNE
Maison à CHAMPIGNY-SUR-MARNE
Maison à CHAMPIGNY-SUR-MARNE
Maison à CHAMPIGNY-SUR-MARNE
Maison à CHAMPIGNY-SUR-MARNE
Maison à CHAMPIGNY-SUR-MARNE
Maison à CHAMPIGNY-SUR-MARNE
Ce site est protégé par reCAPTCHA la Politique de confidentialité et les Conditions d’utilisation de Google s’appliquent.
Obtenir un prêt immobilier au meilleur taux ?

En poursuivant votre navigation sans modifier vos paramètres, vous acceptez l'utilisation de cookies susceptibles de réaliser des statistiques de visite. Cliquez ici pour plus d'informations