Bénéficiez des services de nos partenaires locaux soigneusement sélectionnés
pour vous accompagner dans votre parcours d'achat immobilier

Voir tous les partenaires locaux

Appartement à vendre - 65 av Georges MANDEL 75016 PARIS - 3,5 M € FAI -

— Paris-16e 75016 —
3 500 000 €
201 m²
6 pièces
balcon/terrassejardinascenseur

Nos partenaires locaux
Votre déménageur
Déménagement national ou international ? Bénéficiez d'un accompagnement sur mesure à chaque étape.
04 78 97 33 43 ou cliquez-ici
Votre expert de déménagement
Fort de 30 ans d'expérience, entreprise familiale, travaille sans sous-traitance , équipe organisée et professionnelle
0142431746 ou cliquez-ici
Votre déménageur local
Simplifiez vous la vie ! Déménagement, Monte-meuble, Vente de matériel et Débarras sur toute l'Ile de France !
01 44 90 02 18 ou cliquez-ici
Votre concepteur créateur
Notre savoir faire vous assure une vrai expertise pour la conception de vos espaces de vie : dressings, cuisines, ect.
01 84 14 66 65 ou cliquez-ici
Votre staffeur ornemaniste
Faites confiance aux nombreuses années d'experiences de votre staffeur ornemaniste au service de vos projets !
06 28 48 12 03 ou cliquez-ici
Votre rénovation globale
Rénovation d'intérieure - Aménagement - Décoration - Création de Cuisine Haut de gamme - SDB - Dressing.. Contactez le :
01 44 07 65 01 ou cliquez-ici

Voir tous les partenaires locaux

Thomas EZQUERRA, vous invite à découvrir ce magnifique appartement à rénover, idéalement situé à deux pas de la mairie du XVIème arrondissement et à proximité des charmants commerces de la rue de la Pompe.

Ideal Professions Libérales : Avocat, Notaire, Expert-Comptable, Médecin, Chirurgien-dentiste, Infirmier libéral, cabinet Médical etc...

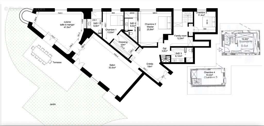
Avec une surface au sol généreuse de 220 m² et une superficie Carrez de 201,43 m², cet espace offre de nombreuses possibilités d'aménagement. Profitez de la flexibilité de créer 3 à 4 chambres selon vos besoins, ce qui en fait un bien parfait pour les familles ou les investisseurs souhaitant valoriser leur patrimoine.

L'appartement se distingue par ses volumes impressionnants, avec une hauteur sous plafond de 4,20 m, créant une atmosphère lumineuse et aérée. De plus, vous serez séduit par le grand jardin de 172 m², un véritable havre de paix en plein cœur de la ville, idéal pour profiter de moments de détente ou de convivialité.

Pour votre confort, un parking dans l'immeuble est proposé en supplément au prix de 50 000 €, un atout précieux dans ce quartier animé.

Les travaux de rénovation sont estimés à 300 000 €, offrant ainsi l'opportunité de personnaliser cet appartement selon vos goûts et vos envies.

Ne manquez pas cette occasion unique de réaliser un bien d'exception dans un secteur recherché.
Contactez moi au [Coordonnées masquées] pour organiser une visite.

TF 4339€ / Charges Mensuel 1380€ ( Gardien, Ascenseur, Chauffage, Eau Froide, )

Les informations sur les risques auxquels ce bien est exposé sont disponibles sur le site Géorisques : www.georisques.gouv.fr
Voir plus

Référence: 873
Bien en copropriété. Nombre de lots : 25. Charges de copropriété : 1376 €.
Honoraires d'agence de 3.4% à la charge de l'acquéreur
Appartement à PARIS-16E
Appartement à PARIS-16E
Appartement à PARIS-16E
Appartement à PARIS-16E
Appartement à PARIS-16E
Appartement à PARIS-16E
Appartement à PARIS-16E
Géorisques

Les informations sur les risques auxquels ce bien est exposé sont disponibles sur le site Géorisques : www.georisques.gouv.fr

Ce site est protégé par hCaptcha Politique de confidentialité et Conditions d’utilisation s’appliquent.