Bénéficiez des services de nos partenaires locaux soigneusement sélectionnés
pour vous accompagner dans votre parcours d'achat immobilier

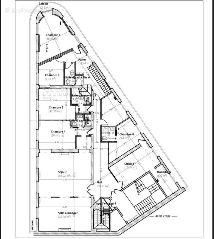
Paris 8 - appartement triplex - arc de triomphe

— Paris-8e 75008 —
10 000 000 €
500 m²
12 pièces
parkingbalcon/terrasse

Nos partenaires locaux
PARIS 8 - HOCHE / FRIEDLAND EZRA HOME vous propose en exclusivité un appartement triplex situé dans l’un des quartiers les plus prestigieux de Paris, à 300 m de la Place Charles de Gaulle et des Champs-Élysées, ce magnifique triplex de 491 m2 occupe les 3, 4 et 5 étages d’un immeuble haussmannien de grand standing. Accessible par un ascenseur privatif et deux escaliers intérieurs, il offre de somptueux volumes baignés de lumière et une vue imprenable sur l’Arc de Triomphe. Il se compose de 9 chambres, d’un vaste séjour, d’une cuisine équipée haut de gamme, ainsi que de 35 m2 de balcons. Pour un confort absolu, l’appartement dispose également d’une salle de sport privée et d’un sauna. L’immeuble bénéficie de la présence d’un gardien 6 jours sur 7, garantissant sécurité et sérénité. Idéalement situé à proximité immédiate des boutiques de luxe du Triangle d’Or, des palaces parisiens et des quais de Seine, cet appartement exceptionnel incarne le prestige et l’élégance parisienne. VUE DIRECTE SUR L’ARC DE TRIOMPHE - RARE SUR LE MARCHÉ - POSSIBILITÉ DE DIVISER LES LOTS - DERNIER ETAGE Situation géographique exceptionnelle à proximité immédiate des commerces, et des transports.
Voir plus

Bien en copropriété. Nombre de lots : 22.
Barème des honoraires
DPE
A
B
C
D
E
F
G
GES
A
B
C
D
E
F
G

Prêt immobilier

Vous souhaitez connaître votre capacité d’emprunt et trouver le meilleur crédit immobilier ?
Réaliser une simulation gratuite

Appartement à PARIS-8E
Appartement à PARIS-8E
Appartement à PARIS-8E
Appartement à PARIS-8E
Appartement à PARIS-8E
Appartement à PARIS-8E
Appartement à PARIS-8E
Appartement à PARIS-8E
Appartement à PARIS-8E
Appartement à PARIS-8E
Appartement à PARIS-8E
Appartement à PARIS-8E
Appartement à PARIS-8E
Appartement à PARIS-8E
Appartement à PARIS-8E
Appartement à PARIS-8E
Appartement à PARIS-8E
Appartement à PARIS-8E
Appartement à PARIS-8E
Appartement à PARIS-8E
Appartement à PARIS-8E
Appartement à PARIS-8E
Appartement à PARIS-8E
Appartement à PARIS-8E
Appartement à PARIS-8E
Ce site est protégé par reCAPTCHA la Politique de confidentialité et les Conditions d’utilisation de Google s’appliquent.
Obtenir un prêt immobilier au meilleur taux ?

En poursuivant votre navigation sans modifier vos paramètres, vous acceptez l'utilisation de cookies susceptibles de réaliser des statistiques de visite. Cliquez ici pour plus d'informations