Bénéficiez des services de nos partenaires locaux soigneusement sélectionnés
pour vous accompagner dans votre parcours d'achat immobilier

Appartement nancy 3 pièce(s) 82.43 m2

— Nancy 54000 —
160 000 €
82 m²
3 pièces
parkingascenseur

Nos partenaires locaux
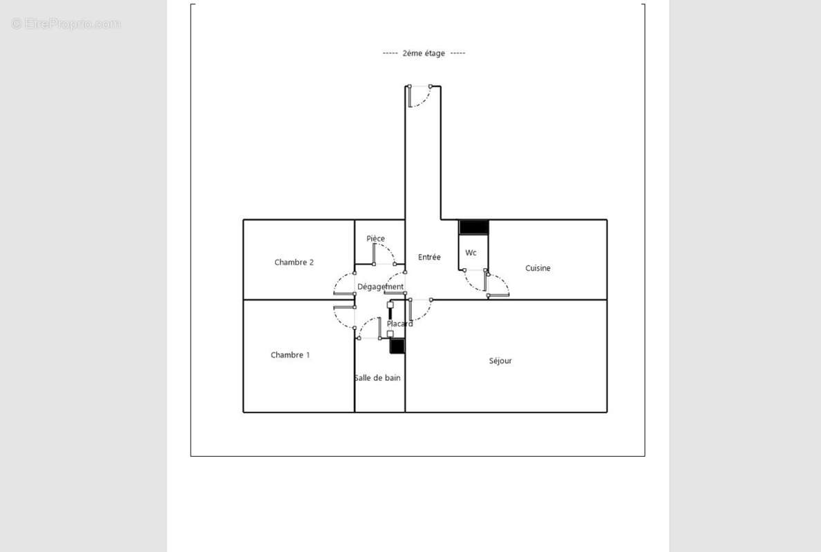
Adérito NEVES PIRES via ACJ IMMOBILIER vous propose en exclusivité cet appartement, un 3 Pièces avec parking couvert et cave, 82m² carrez au 2ème étage avec ascenseur dans une belle copropriété à l'angle du Boulevard Albert 1er et de la rue de Boudonville à Nancy. Vous trouverez une entrée desservant une partie jour avec cuisine, un grand séjour, toilettes, puis une partie nuit avec un cellier, deux chambres, un placard et une salle de bains. L'appartement, Proche de la FAC de lettres, mérite une rénovation (peintures, cuisine, salle de bains... ). La cuisine pourra être ouverte sur le séjour au besoin. La copropriété est bien tenue, le parking est sécurisé avec porte motorisée. La cave est saine. 1er contact par message svp pour plus d'informations ! Visite virtuelle disponible. Conformément à l'article L 561-5 du Code Monétaire et Financier, une pièce d'identité vous sera demandée pour l'organisation d'une visite. Les informations sur les risques auxquels ce bien est exposé sont disponibles sur le site Géorisques : www.georisques.gouv.fr Copropriété de 27 lots - dont 27 lots habitation. (Pas de procédure en cours). Charges annuelles : 1500 euros. Aderito NEVES PIRES (EI) Agent Commercial - Numéro RSAC : 852 148 626 - NANCY.
Voir plus

Référence: 64
Bien en copropriété. Nombre de lots : 27. Charges de copropriété : 1500 €.
Honoraires à la charge du vendeur.
Barème des honoraires
DPE
A
B
C
D
E
F
G
GES
A
B
C
D
E
F
G

Prêt immobilier

Vous souhaitez connaître votre capacité d’emprunt et trouver le meilleur crédit immobilier ?
Réaliser une simulation gratuite

Appartement à NANCY
Appartement à NANCY
Appartement à NANCY
Appartement à NANCY
Appartement à NANCY
Appartement à NANCY
Appartement à NANCY
Appartement à NANCY
Appartement à NANCY
Appartement à NANCY
Appartement à NANCY
Appartement à NANCY
Ce site est protégé par reCAPTCHA la Politique de confidentialité et les Conditions d’utilisation de Google s’appliquent.
Obtenir un prêt immobilier au meilleur taux ?

En poursuivant votre navigation sans modifier vos paramètres, vous acceptez l'utilisation de cookies susceptibles de réaliser des statistiques de visite. Cliquez ici pour plus d'informations