Rer d - coliving de 6ch cle en main

— Pierrefitte-Sur-Seine 93380 —
350 000 €
82 m²
6 pièces

Situé à quelques pas de l'arret du T5 Alcide d'Orbigny et à seulement 10 min du RER D PIERREFITTE-STAINS, nous vous proposons un investissement clé en main à forte rentabilité locative...

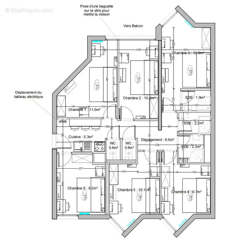
Il s'agit d'un appartement traversant de type T6 sans aucun travaux avec 6 chambres louées/meublées. 3 chambres jouissent d'un accès balcon.
Présence d'une cuisine séparée équipée : lave vaisselle, lave linge, plaque de cuisson, hote et four micro ondes encastré.
3 salles d'eau, 2 cabinets de toilettes séparés.
Le système à été imaginé en Plug and Play pour les locataires afin de maximiser leur confort : frigo individuel, lave linge, literie, armoire, bureau, télévision, internet...
Il est situé au 2ème étage d'une copropriété bien entretenue.
Revenus locatifs annuels CC : 43.080€
RENTABILITE NETTE : 9.71% => 9% FNI.
La rentabilité nette est obtenue après déduction de toutes charges : electricité / charges de copropriété / taxe foncière.
Disponible immédiatement. MANSION PARIS7 rue du DÔME, 75116 PARIS – Tél : +33(0)6.11.65.36.88SAS au capital de 10 000 Euros inscrite au R.C.S. de PARIS sous le numéro B 532 490 794, titulaire de la carte professionnelle 'Transactions ' No CPI 7501 2018 000 033 698 délivrée par le CCI de PARIS Île de France, APE 6831Z
Voir plus

Référence: 1619
Bien en copropriété. Charges de copropriété : 4610 €.
Honoraires d'agence de 4.48% à la charge de l'acquéreur
Barème des honoraires
DPE
A
B
C
D
E
F
G
GES
A
B
C
D
E
F
G

Prêt immobilier

Vous souhaitez connaître votre capacité d’emprunt et trouver le meilleur crédit immobilier ?
Réaliser une simulation gratuite

Appartement à PIERREFITTE-SUR-SEINE
Appartement à PIERREFITTE-SUR-SEINE
Appartement à PIERREFITTE-SUR-SEINE
Appartement à PIERREFITTE-SUR-SEINE
Appartement à PIERREFITTE-SUR-SEINE
Appartement à PIERREFITTE-SUR-SEINE
Appartement à PIERREFITTE-SUR-SEINE
Appartement à PIERREFITTE-SUR-SEINE
Appartement à PIERREFITTE-SUR-SEINE
Appartement à PIERREFITTE-SUR-SEINE
Appartement à PIERREFITTE-SUR-SEINE
Appartement à PIERREFITTE-SUR-SEINE
Ce site est protégé par reCAPTCHA la Politique de confidentialité et les Conditions d’utilisation de Google s’appliquent.
Obtenir un prêt immobilier au meilleur taux ?

En poursuivant votre navigation sans modifier vos paramètres, vous acceptez l'utilisation de cookies susceptibles de réaliser des statistiques de visite. Cliquez ici pour plus d'informations