Bénéficiez des services de nos partenaires locaux soigneusement sélectionnés
pour vous accompagner dans votre parcours d'achat immobilier

Appartement 35 m² à Trouville-Sur-Mer

— Trouville-Sur-Mer 14360 —
199 900 €
35 m²
2 pièces
balcon/terrasse

Nos partenaires locaux
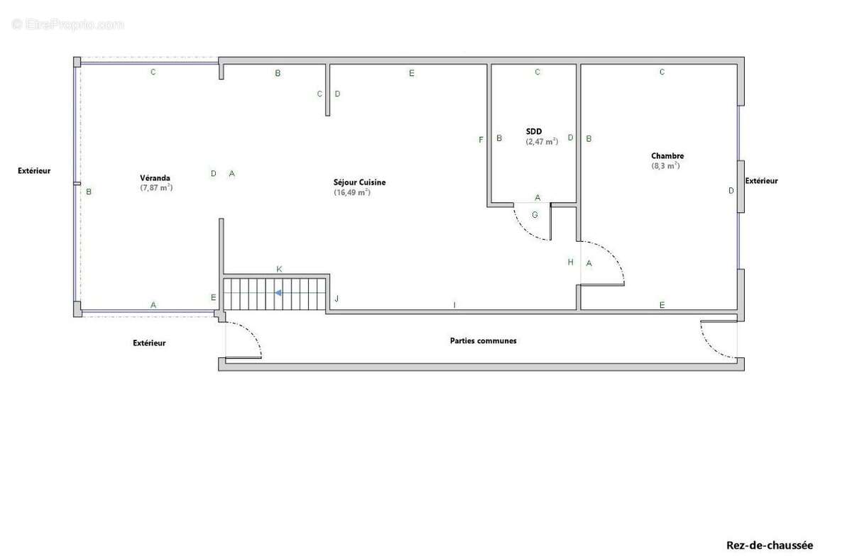
Sous compromis : TROUVILLE SUR MER - Proche du Marché aux Poissons, dans une petite copropriété très bien entretenue aux faibles charges, charmant deux-pièces bénéficiant d'un jardin privatif de 25 m² exposé OUEST.

Idéalement situé à égale distance de la plage, de la gare et des quais, cet appartement comprend une pièce de vie avec cuisine aménagée et équipée, un espace séjour/salle à manger, une chambre et une salle d'eau avec WC. Lumineux grâce à son exposition et habitable immédiatement, il constitue un pied-à-terre agréable ou un investissement locatif intéressant.

Rare sur le marché.

Honoraires inclus de 4.93% TTC à la charge de l'acquéreur. Prix hors honoraires 190 500 €. Dans une copropriété de 6 lots. Quote-part moyenne du budget prévisionnel 520 €/an. Aucune procédure n'est en cours. Logement à consommation énergétique excessive : Classe énergie F, Classe climat C Montant estimé des dépenses annuelles d'énergie pour un usage standard : entre 1380.00 € et 1900.00 € sur les années 2021, 2022 et 2023 (abonnements compris). Les informations sur les risques auxquels ce bien est exposé sont disponibles sur le site Géorisques : georisques.gouv.fr.

Carte pro. CPI14[Coordonnées masquées]20121
AC ADC 14[Coordonnées masquées]00 098
Voir plus

Référence: 1427-ABI
Bien en copropriété. Nombre de lots : 6. Charges de copropriété : 520 €.
Honoraires d'agence de 4.93% à la charge de l'acquéreur
Barème des honoraires
DPE
A
B
C
D
E
F
G
GES
A
B
C
D
E
F
G
Appartement à TROUVILLE-SUR-MER
Appartement à TROUVILLE-SUR-MER
Appartement à TROUVILLE-SUR-MER
Appartement à TROUVILLE-SUR-MER
Appartement à TROUVILLE-SUR-MER
Appartement à TROUVILLE-SUR-MER
Appartement à TROUVILLE-SUR-MER
Appartement à TROUVILLE-SUR-MER
Appartement à TROUVILLE-SUR-MER
Géorisques

Les informations sur les risques auxquels ce bien est exposé sont disponibles sur le site Géorisques : www.georisques.gouv.fr

Ce site est protégé par hCaptcha Politique de confidentialité et Conditions d’utilisation s’appliquent.

En poursuivant votre navigation sans modifier vos paramètres, vous acceptez l'utilisation de cookies susceptibles de réaliser des statistiques de visite. Cliquez ici pour plus d'informations