Bénéficiez des services de nos partenaires locaux soigneusement sélectionnés
pour vous accompagner dans votre parcours d'achat immobilier

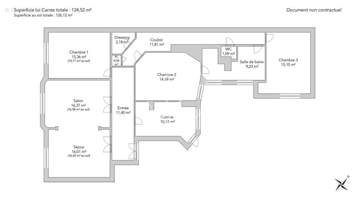
Paris 7e - suffren / champ de mars - appartement à vendre - 5 pièces - 124,52m² carrez - 3 chambres - vue dégagée.

— Paris-7e 75007 —
2 290 000 €
125 m²
5 pièces
ascenseur

Nos partenaires locaux
Situé au sixième étage par ascenseur d'un bel immeuble haussmannien bien entretenu, cet appartement de 124,52m² loi Carrez bénéficie d'une vue dégagée et d'une agréable luminosité grâce à son exposition sud-ouest.
Il comporte une entrée, un double salon salle à manger sur rue doté d'un parquet en point de Hongrie, de hauts plafonds, de riches moulures et de cheminées. En face des réceptions, la cuisine séparée est équipée. Une première chambre, également sur rue, est agrémentée de sa salle de douche attenante.
Dans la partie sur cour, orientée sud-est, deux chambres, chacune avec sa salle de douche ou salle de bains. Enfin, des toilettes indépendantes et de nombreux rangements.
L'ensemble est en très bon état. Deux spacieuses caves complètent cette offre. Présence d'un gardien dans la copropriété et d'un espace pour vélo dans la cour.
En supplément, possibilité d'acquérir une chambre de service au septième étage à 136.500euros.
Voir plus

Référence: 3175GREGEN
Barème des honoraires

Prêt immobilier

Vous souhaitez connaître votre capacité d’emprunt et trouver le meilleur crédit immobilier ?
Réaliser une simulation gratuite

Appartement à PARIS-7E
Appartement à PARIS-7E
Appartement à PARIS-7E
Appartement à PARIS-7E
Appartement à PARIS-7E
Appartement à PARIS-7E
Appartement à PARIS-7E
Appartement à PARIS-7E
Appartement à PARIS-7E
Appartement à PARIS-7E
Appartement à PARIS-7E
Appartement à PARIS-7E
Appartement à PARIS-7E
Appartement à PARIS-7E
Appartement à PARIS-7E
Appartement à PARIS-7E
Appartement à PARIS-7E
Appartement à PARIS-7E
Appartement à PARIS-7E
Appartement à PARIS-7E
Appartement à PARIS-7E
Appartement à PARIS-7E
Appartement à PARIS-7E
Appartement à PARIS-7E
Ce site est protégé par reCAPTCHA la Politique de confidentialité et les Conditions d’utilisation de Google s’appliquent.
Obtenir un prêt immobilier au meilleur taux ?

En poursuivant votre navigation sans modifier vos paramètres, vous acceptez l'utilisation de cookies susceptibles de réaliser des statistiques de visite. Cliquez ici pour plus d'informations