Bénéficiez des services de nos partenaires locaux soigneusement sélectionnés
pour vous accompagner dans votre parcours d'achat immobilier

Appartement t2 avec balcon et box

— La Seyne-Sur-Mer 83500 —
129 000 €
47 m²
2 pièces
parkingbalcon/terrasse

Nos partenaires locaux
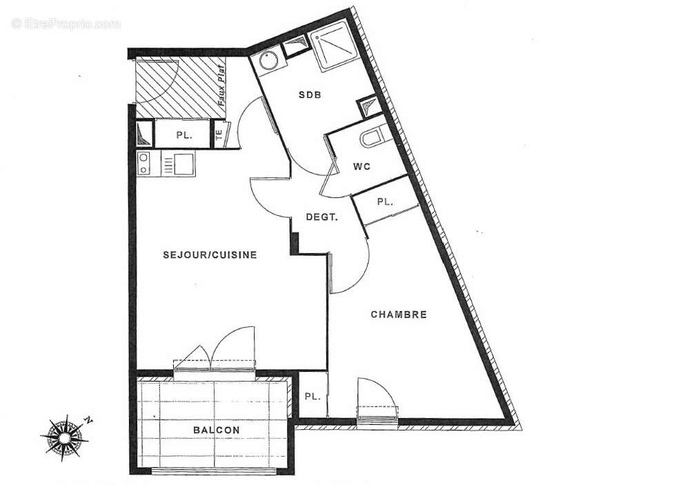
C'est dans une résidence de 2014 que nous vous proposons à la vente cet agréable appartement 2 pièces de près de 47m2.
Situé au 4ème étage avec ascenseur, son emplacement et orientation vous permettent de bénéficier d'un bel ensoleillement.
L'appartement se compose d'une entrée avec grand placard, d'un séjour avec kitchenette ouverte, cet espace à vivre donnant sur le balcon de près de 7m2.
Vous profiterez d'une grande chambre de 14m2 avec deux placards intégrés, d'une salle d'eau fonctionnelle et d'un wc séparé.
Pour votre confort : double vitrage, volets roulants, beaucoup de rangements, interphone, ascenseur, toutes les commodités à quelques minutes : commerces, gare, accès autoroute...
Le + : un box privatif dans le sous-sol sécurisé de la résidence.
Voir plus

Référence: 1532
Bien en copropriété. Nombre de lots : 72. Charges de copropriété : 1600 €.
Honoraires d'agence de 5.74% à la charge de l'acquéreur
DPE
A
B
C
D
E
F
G
GES
A
B
C
D
E
F
G

Prêt immobilier

Vous souhaitez connaître votre capacité d’emprunt et trouver le meilleur crédit immobilier ?
Réaliser une simulation gratuite

Appartement à LA SEYNE-SUR-MER
Appartement à LA SEYNE-SUR-MER
Appartement à LA SEYNE-SUR-MER
Appartement à LA SEYNE-SUR-MER
Appartement à LA SEYNE-SUR-MER
Appartement à LA SEYNE-SUR-MER
Ce site est protégé par reCAPTCHA la Politique de confidentialité et les Conditions d’utilisation de Google s’appliquent.
Obtenir un prêt immobilier au meilleur taux ?

En poursuivant votre navigation sans modifier vos paramètres, vous acceptez l'utilisation de cookies susceptibles de réaliser des statistiques de visite. Cliquez ici pour plus d'informations