Bénéficiez des services de nos partenaires locaux soigneusement sélectionnés
pour vous accompagner dans votre parcours d'achat immobilier

À vendre 100 000 € à toulouse/aucamville : appartement avec terrasse et garage

— Aucamville 31140 —
100 000 €
31 m²
2 pièces
parkingbalcon/terrasse

Nos partenaires locaux
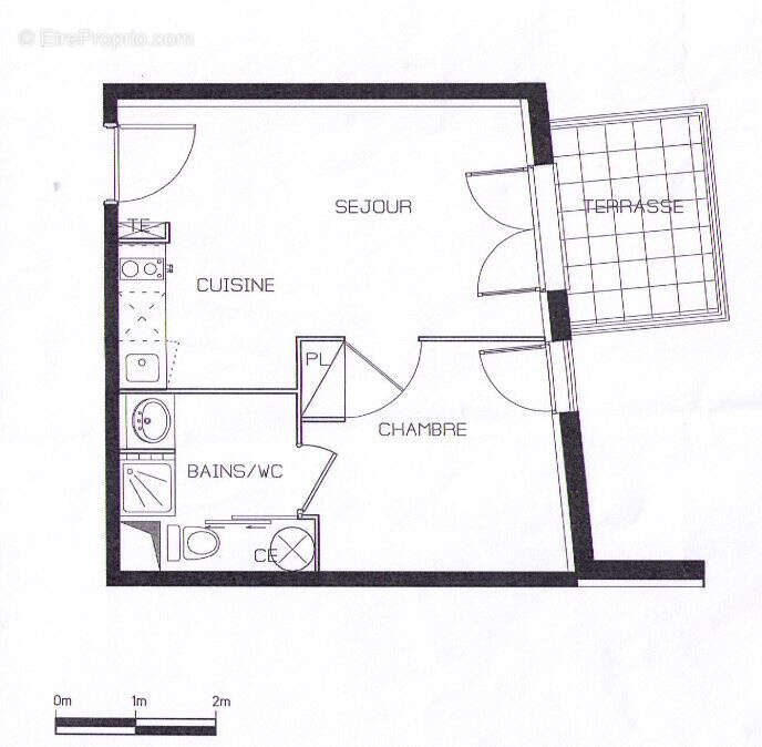
À Toulouse 31200, chemin de la croix bénite, devenez propriétaire d'un 2 pièces avec une charmante terrasse de 5m2 et d'un garage privatif en sous-sol.La date de construction : 2012.Tout électrique avec cumulus. Il s'agit d'un appartement se trouvant au rez-de-chaussée sur-élevé vue jardin et sécurisé. Ce type de logement est parfaitement adapté à un premier achat immobilier que cela soit pour la résidence principale ou un investissement locatif. L'espace intérieur comprend une salle d'eau, d'un Wc séparé, une pièce à vivre 16.39m2 avec un espace kitchenette équipée, une chambre avec placard. Sa superficie intérieure habitable développe 31m2 en loi Carrez. Le calme du lieu est assuré grâce aux fenêtres à double vitrage. Dehors, l'habitation s'accompagne d'une terrasse d'une surface de 5m2, ce qui porte la surface à vivre à 36m2. Le prix s'élève à 100 000 euros incluant les frais d'agence au forfait de 5 000€ à la charge acquéreur soit 95 000.00€ net vendeur. L'appartement est vendu sans locataire. Le règlement de copropriété accepte les sociétés qui ne reçoivent pas de public, sans nuisance, et sans matériel toxique. Ce bien est situé à 200m des commerces et services du centre ville de Aucamville.
Transaction ouverte aux partenariats: mandat de recherche, mandat de délégation, etc
Vendu libre de toute occupation.
Appartement parfaitement entretenu et fonctionnel.

--------------------------------------------------------------------
C'est l'immobilier d'habitation dans l'ancien, le neuf et le réhabilité pour votre résidence principale, secondaire et l'investissement locatif. C'est votre agence à la carte! Prestations de géobiologie et diagnostics d'expositions aux ondes néfastes d'un bien ou d'un terrain. Possibilité d'étude financière pour le financement d'un bien ou de rénovation.

Votre domicile est-il exposé aux ondes électromagnétiques hautes et basses fréquences sans le savoir ?

Nous vivons entourés d’ondes invisibles qui peuvent perturber notre bien-être, notre santé

Diagnostic-Exposition-Ondes-Habitat

Diagnostic-Conseils Préconisation de protection sur Mesure pour un habitat sain










- Annonce rédigée et publiée par un Agent Mandataire -
Voir plus

Bien en copropriété. Nombre de lots : 45. Charges de copropriété : 684 €.
Honoraires d'agence de 5.26% à la charge de l'acquéreur
Barème des honoraires
DPE
A
B
C
D
E
F
G
GES
A
B
C
D
E
F
G

Prêt immobilier

Vous souhaitez connaître votre capacité d’emprunt et trouver le meilleur crédit immobilier ?
Réaliser une simulation gratuite

Appartement à AUCAMVILLE
Appartement à AUCAMVILLE
Appartement à AUCAMVILLE
Appartement à AUCAMVILLE
Appartement à AUCAMVILLE
Appartement à AUCAMVILLE
Appartement à AUCAMVILLE
Appartement à AUCAMVILLE
Appartement à AUCAMVILLE
Appartement à AUCAMVILLE
Appartement à AUCAMVILLE
Appartement à AUCAMVILLE
Appartement à AUCAMVILLE
Appartement à AUCAMVILLE
Appartement à AUCAMVILLE
Appartement à AUCAMVILLE
Appartement à AUCAMVILLE
Appartement à AUCAMVILLE
Appartement à AUCAMVILLE
Appartement à AUCAMVILLE
Appartement à AUCAMVILLE
Appartement à AUCAMVILLE
Appartement à AUCAMVILLE
Appartement à AUCAMVILLE
Appartement à AUCAMVILLE
Appartement à AUCAMVILLE
Appartement à AUCAMVILLE
Appartement à AUCAMVILLE
Appartement à AUCAMVILLE
Ce site est protégé par reCAPTCHA la Politique de confidentialité et les Conditions d’utilisation de Google s’appliquent.
Obtenir un prêt immobilier au meilleur taux ?

En poursuivant votre navigation sans modifier vos paramètres, vous acceptez l'utilisation de cookies susceptibles de réaliser des statistiques de visite. Cliquez ici pour plus d'informations