Maison avec garage - aleria

— Aleria 20270 —
295 000 €
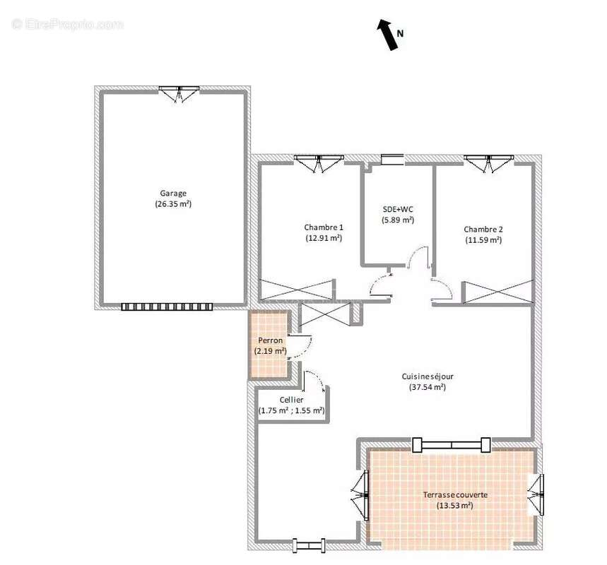
69 m² / 416 m²
3 pièces
parkingbalcon/terrassejardin

Située dans une résidence calme et recherchée à Aléria, cette charmante maison individuelle de plain-pied construite en 2021 vous séduira par son confort et sa fonctionnalité.
D’une superficie de 70m² habitables environ, bien agencée, elle offre deux chambres lumineuses, une salle d’eau avec WC, un salon convivial et une cuisine entièrement équipée. Chaque pièce est climatisée pour un confort optimal tout au long de l’année.

De nombreux rangements ont été prévus pour un intérieur toujours bien organisé.
L’extérieur, entièrement clos, propose un beau potentiel avec un terrain piscinable, idéal pour vos projets d’aménagement. Le garage attenant complète parfaitement ce bien, tout comme le portail électrique sécurisant l’accès.

La maison est très bien entretenue, prête à accueillir ses nouveaux propriétaires sans travaux à prévoir.
Vous serez à proximité immédiate des commerces et à seulement 5 minutes des plages, un emplacement parfait pour profiter pleinement de la douceur de vivre en Corse.

Idéale pour un primo-accédant, un investissement locatif ou en tant que résidence principale, cette maison combine tous les atouts pour un projet réussi. Une opportunité rare à saisir rapidement !
Voir plus

Référence: 773JLV
DPE
A
B
C
D
E
F
G
GES
A
B
C
D
E
F
G
Maison à ALERIA
Maison à ALERIA
Maison à ALERIA
Maison à ALERIA
Maison à ALERIA
Maison à ALERIA
Maison à ALERIA
Maison à ALERIA
Maison à ALERIA
Maison à ALERIA
Maison à ALERIA
Maison à ALERIA
Maison à ALERIA
Géorisques

Les informations sur les risques auxquels ce bien est exposé sont disponibles sur le site Géorisques : www.georisques.gouv.fr

Ce site est protégé par hCaptcha Politique de confidentialité et Conditions d’utilisation s’appliquent.

En poursuivant votre navigation sans modifier vos paramètres, vous acceptez l'utilisation de cookies susceptibles de réaliser des statistiques de visite. Cliquez ici pour plus d'informations