Bénéficiez des services de nos partenaires locaux soigneusement sélectionnés
pour vous accompagner dans votre parcours d'achat immobilier

78180 grand 5 pièces lumineux à montigny-le-bretonneux résidence calme, travaux votés et payés

— Montigny-Le-Bretonneux 78180 —
306 505 €
106 m²
5 pièces
parkingbalcon/terrasse

Nos partenaires locaux
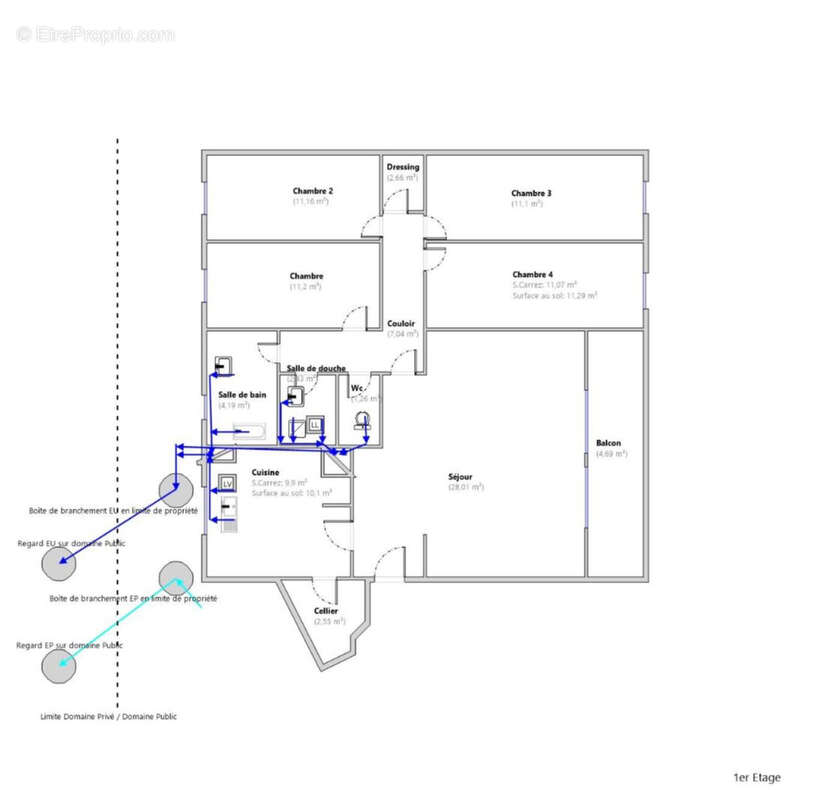
Venez découvrir avec Hanane de BLB IMMOBILIER ce spacieux appartement familial de 5 pièces, situé au 1er étage sur 4 avec ascenseur, dans une résidence calme, bien entretenue et sécurisée avec gardien, en plein cœur d’un environnement verdoyant à Montigny-le-Bretonneux. Idéalement placé, à proximité immédiate des écoles, commerces, services et parfaitement desservi par les transports (gare à quelques minutes, lignes de bus), ce bien offre confort, fonctionnalité et cadre de vie recherché.
L’appartement d’une superficie habitable de 106 m2 se compose d’une entrée, d’un séjour lumineux de 28,01 m2 ouvrant sur une loggia/balcon de 4,69 m2, d’une cuisine indépendante de 10,1 m2, de quatre chambres dont une de 11,2 m2, une de 11,16 m2 avec dressing de 2,66 m2, une de 11,1 m2, et une de 11,07 m2 (11,29 m2 au sol), d’une salle de bains de 4,19 m2, d’une salle de douche avec WC de 2,26 m2, d’un WC séparé, d’un cellier de 2,55 m2, d’un couloir avec placard de 7,04 m2, ainsi que de deux espaces de rangement supplémentaires.
LES PLUS +++ Les travaux de rénovation énergétique ont été votés et intégralement payés : isolation thermique par l’extérieur, isolation de la toiture, changement du système de VMC, remplacement des volets par des volets roulants électriques et carrelage des balcons à venir. L’électricité est aux normes. Le classement énergétique sera en C après travaux,deux places de parking en sous sol .
Les charges mensuelles s’élèvent à 300 € et comprennent l’eau chaude, l’eau froide, l’entretien des espaces verts et la présence d’un gardien. Taxe foncière : 1 600 €.
Ce bien représente une opportunité rare pour une famille souhaitant s’installer dans un logement confortable, bien agencé et parfaitement situé, ou pour un investisseur cherchant un bien avec un excellent potentiel de valorisation.
Prix de vente : 306 500 € Pour toute information ou visite, contactez Hanane au [Coordonnées masquées].
Les informations sur les risques auxquels ce bien est exposé sont disponibles sur le site Géorisques : www.georisques.gouv.fr Annonce rédigée sous la responsabilité éditoriale de Mme HOUMANI Hanane, agente commerciale mandataire en immobilier, immatriculée au RSAC du Tribunal de Commerce de Versailles sous le no981 461 767.
Voir plus

Bien en copropriété. Nombre de lots : 3. Charges de copropriété : 3600 €.
Barème des honoraires
DPE
A
B
C
D
E
F
G
GES
A
B
C
D
E
F
G

Prêt immobilier

Vous souhaitez connaître votre capacité d’emprunt et trouver le meilleur crédit immobilier ?
Réaliser une simulation gratuite

Appartement à MONTIGNY-LE-BRETONNEUX
Appartement à MONTIGNY-LE-BRETONNEUX
Appartement à MONTIGNY-LE-BRETONNEUX
Appartement à MONTIGNY-LE-BRETONNEUX
Appartement à MONTIGNY-LE-BRETONNEUX
Appartement à MONTIGNY-LE-BRETONNEUX
Appartement à MONTIGNY-LE-BRETONNEUX
Appartement à MONTIGNY-LE-BRETONNEUX
Appartement à MONTIGNY-LE-BRETONNEUX
Appartement à MONTIGNY-LE-BRETONNEUX
Appartement à MONTIGNY-LE-BRETONNEUX
Ce site est protégé par reCAPTCHA la Politique de confidentialité et les Conditions d’utilisation de Google s’appliquent.
Obtenir un prêt immobilier au meilleur taux ?

En poursuivant votre navigation sans modifier vos paramètres, vous acceptez l'utilisation de cookies susceptibles de réaliser des statistiques de visite. Cliquez ici pour plus d'informations