Bénéficiez des services de nos partenaires locaux soigneusement sélectionnés
pour vous accompagner dans votre parcours d'achat immobilier

En exclusivité sur saint jean du falga

— Saint-Jean-Du-Falga 09100 —
44 000 €
405 m²

Nos partenaires locaux
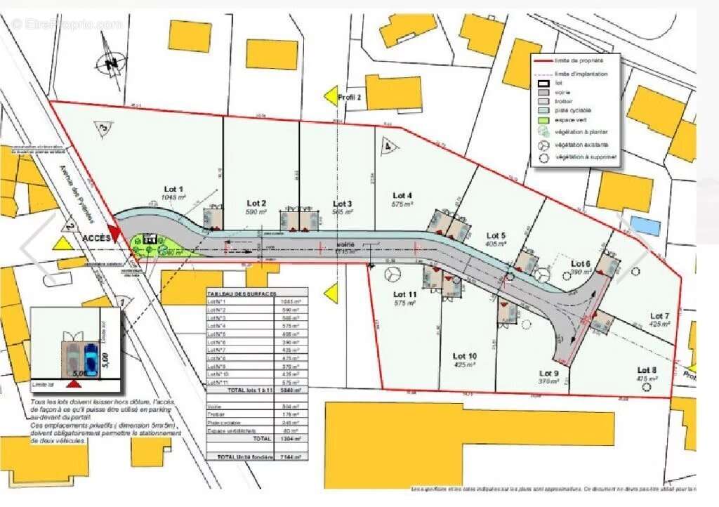
À vendre – Terrains constructibles à Saint-Jean du Falga

Dans un charmant lotissement de 11 lots idéalement situé à Saint-Jean du Falga, plusieurs terrains constructibles de 370 m² à 1 046 m² sont disponibles.

Vous bénéficierez d’un emplacement privilégié, avec toutes les commodités à moins de 100 mètres : école, bureau de poste, boulangerie, supermarché, mairie, et bien plus encore.

Plus que 6 lots disponibles – Ne tardez pas à réserver le vôtre !
Guillaume BERDEIL [Coordonnées masquées]
RSAC 488618265 Honoraires à la charge du vendeur - RCS 81931340400017
Voir plus

Référence: 86093067
Barème des honoraires

Prêt immobilier

Vous souhaitez connaître votre capacité d’emprunt et trouver le meilleur crédit immobilier ?
Réaliser une simulation gratuite

Terrain à SAINT-JEAN-DU-FALGA
Terrain à SAINT-JEAN-DU-FALGA
Terrain à SAINT-JEAN-DU-FALGA
Terrain à SAINT-JEAN-DU-FALGA
Terrain à SAINT-JEAN-DU-FALGA
Ce site est protégé par reCAPTCHA la Politique de confidentialité et les Conditions d’utilisation de Google s’appliquent.
Obtenir un prêt immobilier au meilleur taux ?

En poursuivant votre navigation sans modifier vos paramètres, vous acceptez l'utilisation de cookies susceptibles de réaliser des statistiques de visite. Cliquez ici pour plus d'informations