Bénéficiez des services de nos partenaires locaux soigneusement sélectionnés
pour vous accompagner dans votre parcours d'achat immobilier

Grange à aménager- toiture refaite 2025 - sallèles d'aude

— Salleles-D'aude 11590 —
60 000 €
90 m²
1 pièce
parking

Nos partenaires locaux
SALLÈLES-D’AUDE GRANGE À RÉNOVER TOITURE NEUVE (2025)

Idéalement située au cœur du vignoble languedocien et traversée par le canal de jonction, relaint le célèbre canal du Midi au canal de la Robine, Sallèles-d’Aude est une commune dynamique, prisée pour son charme, son attractivité touristique et ses commerçants engagés dans la vie locale.

Au calme absolu, au fond d’une impasse, et pourtant à deux pas des commerces et de l’animation du centre-bourg, Sandrine de l’agence IMMOJOY Narbonne vous propose cette ancienne grange pleine de potentiel.

Un projet sur mesure pour créer votre chez-vous Cette bâtisse authentique offre un cadre idéal pour concevoir une habitation alliant le caractère de l’ancien au confort moderne :
* Rez-de-chaussée : grand garage de 50 m2
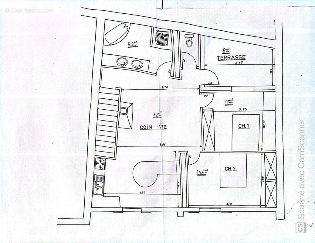
* Étage : plateau de 90 m2 modulable en :
- T3 avec terrasse tropézienne
- ou T4 selon vos envies

Découvrez en photos une suggestion d’aménagement possible.

Atout majeur : toiture entièrement refaite en 2025 (charpente + tuiles), sous garantie décennale.

Raccordements : les réseaux (électricité, gaz, eau, assainissement) sont déjà en bordure de parcelle.

Une occasion rare de transformer cette grange en une maison pleine de caractère, dans un environnement préservé et convivial.

Contactez-moi dès maintenant pour visiter et imaginez votre future vie ici, au cœur de Sallèles-d’Aude.
Cette annonce vous est proposée par Lecoz Sandrine - EI - NoRSAC: 893105510, Enregistré à Chambre de commerce et de l'industrie de Narbonne
Voir plus

Référence: 4626
Honoraires à la charge du vendeur.
Barème des honoraires

Prêt immobilier

Vous souhaitez connaître votre capacité d’emprunt et trouver le meilleur crédit immobilier ?
Réaliser une simulation gratuite

Maison à SALLELES-D'AUDE
Maison à SALLELES-D'AUDE
Maison à SALLELES-D'AUDE
Maison à SALLELES-D'AUDE
Maison à SALLELES-D'AUDE
Maison à SALLELES-D'AUDE
Maison à SALLELES-D'AUDE
Maison à SALLELES-D'AUDE
Maison à SALLELES-D'AUDE
Ce site est protégé par reCAPTCHA la Politique de confidentialité et les Conditions d’utilisation de Google s’appliquent.
Obtenir un prêt immobilier au meilleur taux ?

En poursuivant votre navigation sans modifier vos paramètres, vous acceptez l'utilisation de cookies susceptibles de réaliser des statistiques de visite. Cliquez ici pour plus d'informations