Bénéficiez des services de nos partenaires locaux soigneusement sélectionnés
pour vous accompagner dans votre parcours d'achat immobilier

Exclusivite agence f2 chelles aulnoy

— Chelles 77500 —
179 000 €
48 m²
2 pièces
balcon/terrasse

Nos partenaires locaux
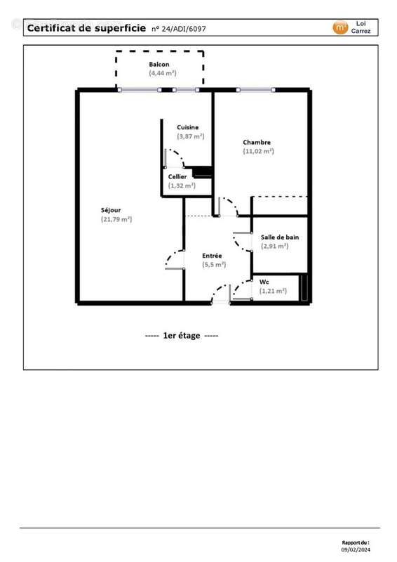
Vendu Loué, appartement de type F2 47m², comprenant une entrée avec placard, un séjour avec une cuisine ouverte aménagée + cellier l'ensemble donnant sur balcon, une chambres avec placard, un toilette, salle de bains, une place de parking en sous-sol, 15MIN GARE A PIED

Référence: 84094887
Barème des honoraires
DPE
A
B
C
D
E
F
G
GES
A
B
C
D
E
F
G

Prêt immobilier

Vous souhaitez connaître votre capacité d’emprunt et trouver le meilleur crédit immobilier ?
Réaliser une simulation gratuite

Appartement à CHELLES
Appartement à CHELLES
Appartement à CHELLES
Ce site est protégé par reCAPTCHA la Politique de confidentialité et les Conditions d’utilisation de Google s’appliquent.
Obtenir un prêt immobilier au meilleur taux ?

En poursuivant votre navigation sans modifier vos paramètres, vous acceptez l'utilisation de cookies susceptibles de réaliser des statistiques de visite. Cliquez ici pour plus d'informations