Maison 146m2 avec dépendances et jardin

— Beauval 80630 —
192 500 €
146 m² / 1 600 m²
4 pièces
jardin

Votre agence immobilière Reflex en s'Home de Doullens vous propose à la vente cette très belle maison présentant beaucoup de cachet, 146m2 habitables et une partie extérieur vous attend avec son jardin sans vis-à-vis et au calme.
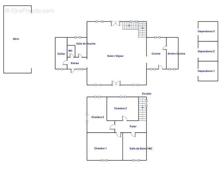
La partie habitable se compose d'une entrée desservant une salle d'eau, buanderie, de sa grande pièce de vie de 60m2 avec son insert bois, un espace cuisine à réaliser selon vos envies et la partie chaufferie
A l'étage vous retrouverez trois belles chambres et une salle de bains.
Pour la partie extérieure vous disposerez d'une grande cour, de plusieurs dépendances et d'une très belle partie jardin.
LENOBLE Anne-Hélène, agent commercial inscrit au RSAC de ARRAS sous le numéro 880 446 679.
Voir plus

Référence: RD1131
Honoraires d'agence de 4.05% à la charge de l'acquéreur
Barème des honoraires
DPE
A
B
C
D
E
F
G
GES
A
B
C
D
E
F
G

Prêt immobilier

Vous souhaitez connaître votre capacité d’emprunt et trouver le meilleur crédit immobilier ?
Réaliser une simulation gratuite

Maison à BEAUVAL
Maison à BEAUVAL
Maison à BEAUVAL
Maison à BEAUVAL
Maison à BEAUVAL
Maison à BEAUVAL
Maison à BEAUVAL
Maison à BEAUVAL
Maison à BEAUVAL
Maison à BEAUVAL
Maison à BEAUVAL
Maison à BEAUVAL
Ce site est protégé par reCAPTCHA la Politique de confidentialité et les Conditions d’utilisation de Google s’appliquent.
Obtenir un prêt immobilier au meilleur taux ?

En poursuivant votre navigation sans modifier vos paramètres, vous acceptez l'utilisation de cookies susceptibles de réaliser des statistiques de visite. Cliquez ici pour plus d'informations