Maison de ville avec cour intérieur

— Bagneres-De-Bigorre 65200 —
245 000 €
216 m²
11 pièces
balcon/terrasse

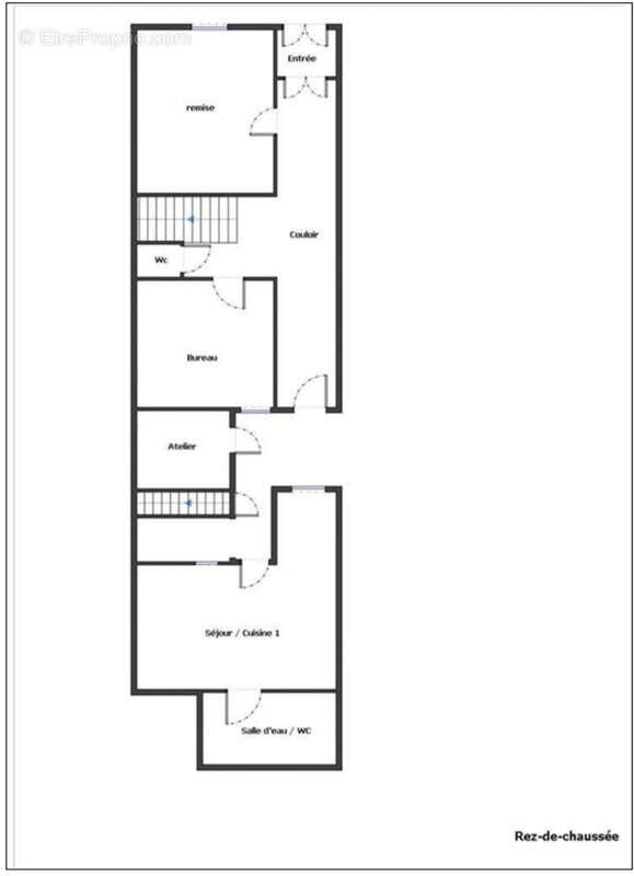
Maison de ville de 219m2 comprenant en rdc 2 piéces de 15m2 , une petite cour intérieure avec T3 indépendant .
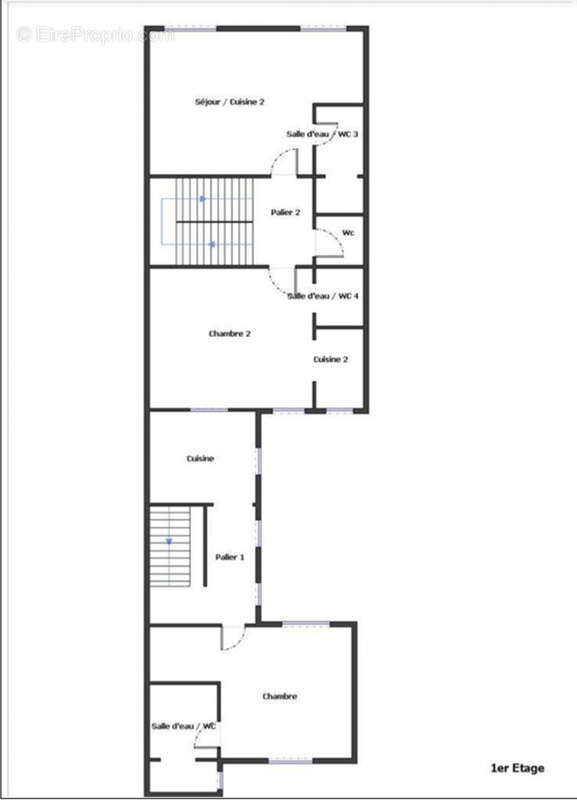
A l'étage 2 studios avec coin cuisine et salle de bain et wc.
Au 2éme étage un T4 duplex .
L'immeuble nécéssite des travaux de rénovation en poste principal la toiture (couverture),double vitrage.
L'immeuble est trés bien situé proche de toutes commodités. - Annonce rédigée et publiée par un Agent Mandataire -
DPE
A
B
C
D
E
F
G
GES
A
B
C
D
E
F
G

Prêt immobilier

Vous souhaitez connaître votre capacité d’emprunt et trouver le meilleur crédit immobilier ?
Réaliser une simulation gratuite

Maison à BAGNERES-DE-BIGORRE
Maison à BAGNERES-DE-BIGORRE
Maison à BAGNERES-DE-BIGORRE
Maison à BAGNERES-DE-BIGORRE
Maison à BAGNERES-DE-BIGORRE
Maison à BAGNERES-DE-BIGORRE
Maison à BAGNERES-DE-BIGORRE
Maison à BAGNERES-DE-BIGORRE
Maison à BAGNERES-DE-BIGORRE
Maison à BAGNERES-DE-BIGORRE
Maison à BAGNERES-DE-BIGORRE
Ce site est protégé par reCAPTCHA la Politique de confidentialité et les Conditions d’utilisation de Google s’appliquent.
Obtenir un prêt immobilier au meilleur taux ?

En poursuivant votre navigation sans modifier vos paramètres, vous acceptez l'utilisation de cookies susceptibles de réaliser des statistiques de visite. Cliquez ici pour plus d'informations