Bénéficiez des services de nos partenaires locaux soigneusement sélectionnés
pour vous accompagner dans votre parcours d'achat immobilier

Propriete 14 hectares - maison et dependances

— Langon 33210 —
366 000 €
147 m² / 143 799 m²
6 pièces
parkingjardin

Nos partenaires locaux
A 5 minutes de La Réole et 20 minutes de Langon, sur la commune de Morizès
Découvrez cette propriété dans une environnement isolé de tout voisinnage (premier voisin à plus de 300 mètres)
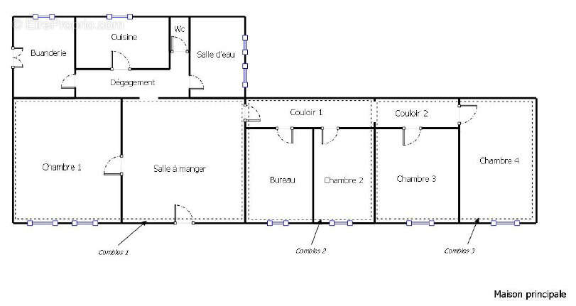
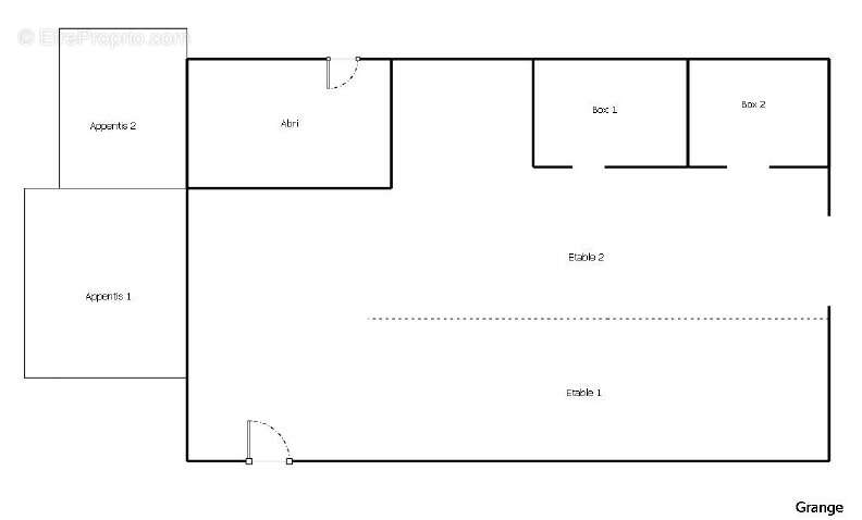
Elle se compose d'une maison d'habitation à rénover, d'une étable (171 m2) et d'une grange (350 m2) réhabilitables en habitation ou idéales pour vos animaux (chevaux, etc.) votre matériel (TP, agricole, etc...)
Le tout sur 14 hectares de terres, aujourd'hui occupées par des vignes librement arrachables.
La maison d'habitation (147,27 m2) se compose d'un séjour, une cuisine, une salle d'eau, 5 chambres et un débarras. Une rénovation complète est à prévoir.
Cette propriété est idéale pour un regroupement familial, un projet agricole /équestre ou une résidence secondaire.
Pour plus d'informations et de photos, vous pouvez contacter Marion Baribeaud au [Coordonnées masquées]
Voir plus

Référence: 363
Honoraires d'agence de 4.57% à la charge de l'acquéreur
Barème des honoraires
DPE
A
B
C
D
E
F
G
GES
A
B
C
D
E
F
G

Prêt immobilier

Vous souhaitez connaître votre capacité d’emprunt et trouver le meilleur crédit immobilier ?
Réaliser une simulation gratuite

Maison à LANGON
Maison à LANGON
Maison à LANGON
Maison à LANGON
Maison à LANGON
Maison à LANGON
Maison à LANGON
Maison à LANGON
Maison à LANGON
Maison à LANGON
Maison à LANGON
Maison à LANGON
Maison à LANGON
Maison à LANGON
Maison à LANGON
Maison à LANGON
Ce site est protégé par reCAPTCHA la Politique de confidentialité et les Conditions d’utilisation de Google s’appliquent.
Obtenir un prêt immobilier au meilleur taux ?

En poursuivant votre navigation sans modifier vos paramètres, vous acceptez l'utilisation de cookies susceptibles de réaliser des statistiques de visite. Cliquez ici pour plus d'informations