Bénéficiez des services de nos partenaires locaux soigneusement sélectionnés
pour vous accompagner dans votre parcours d'achat immobilier

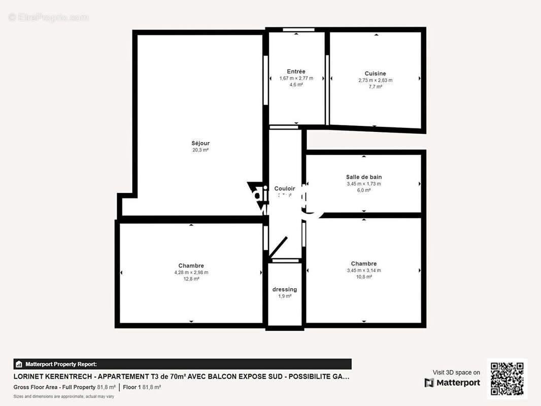
Lorient kerentrech - appartement t3 de 70m² avec balcon - possibilite garage

— Lorient 56100 —
178 920 €
70 m²
3 pièces
balcon/terrasse

Nos partenaires locaux
APPARTEMENT 3 PIÈCES AVEC BALCON EXPOSE SUD - POSSIBILITE GARAGE En vente : à LORIENT (56100) venez découvrir cet appartement T3 de 70 m². Il est situé au 1er étage sans ascenseur d'une petite copropriété des années 50 comprenant 6 lots. Le bâtiment comporte deux étages. Cet appartement se compose comme suit : une cuisine aménagée et équipée ouverte sur salon exposé sud et donnant sur un balcon de 6m², d'une spacieuse salle d'ea/wc de 6m² avec fenetre et deux chambres (de 11 et 13 m²). Il dispose aussi d'un dressing de 2m². Le chauffage est individuel au gaz et les fenetres sont toutes en PVC double vitrage. Possibilité achat garage dans la cour dans l'immeuble pour votre véhicule et stockage. Le bien se trouve à trois minutes des écoles. L'arrêt de bus est situé à une minute du bien. Pour vos loisirs, vous pourrez compter sur le cinéma Cinéville de même qu'un théâtre à quelques pas du logement. Il y a également un bureau de poste et de nombreux restaurants. L'indice DPE de cet appartement est de classe C (126 kWh/m² annuels). Prix 178920 euros frais agence inclus dont 5,25% d'honoraires à charge acquéreur. Découvrez toutes les originalités de cet appartement à vendre en prenant RDV avec votre agence Agence Barraine IMMO Lorient. (5.25 % honoraires TTC à la charge de l'acquéreur.) Copropriété de 6 lots - dont 5 lots habitation. (Pas de procédure en cours). Charges annuelles : 790 euros.
Voir plus

Référence: LT00320-MB
Bien en copropriété. Nombre de lots : 6. Charges de copropriété : 790 €.
Honoraires d'agence de 5.25% à la charge de l'acquéreur
Barème des honoraires
DPE
A
B
C
D
E
F
G
GES
A
B
C
D
E
F
G

Prêt immobilier

Vous souhaitez connaître votre capacité d’emprunt et trouver le meilleur crédit immobilier ?
Réaliser une simulation gratuite

Appartement à LORIENT
Appartement à LORIENT
Appartement à LORIENT
Appartement à LORIENT
Appartement à LORIENT
Appartement à LORIENT
Appartement à LORIENT
Appartement à LORIENT
Appartement à LORIENT
Appartement à LORIENT
Appartement à LORIENT
Appartement à LORIENT
Appartement à LORIENT
Appartement à LORIENT
Appartement à LORIENT
Appartement à LORIENT
Appartement à LORIENT
Appartement à LORIENT
Appartement à LORIENT
Appartement à LORIENT
Ce site est protégé par reCAPTCHA la Politique de confidentialité et les Conditions d’utilisation de Google s’appliquent.
Obtenir un prêt immobilier au meilleur taux ?

En poursuivant votre navigation sans modifier vos paramètres, vous acceptez l'utilisation de cookies susceptibles de réaliser des statistiques de visite. Cliquez ici pour plus d'informations