Bénéficiez des services de nos partenaires locaux soigneusement sélectionnés
pour vous accompagner dans votre parcours d'achat immobilier

Appartement saint malo 2 pièce(s) 49 m2

— Saint-Malo 35400 —
199 000 €
49 m² / 951 m²
2 pièces
parkingjardin

Nos partenaires locaux
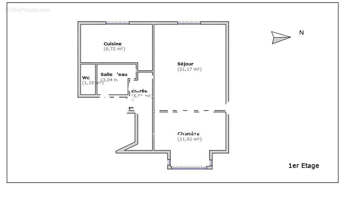
A Saint-Malo, dans une petite copropriété très bien entretenue de 9 appartements situé sur une rue calme , nous vous invitons à découvrir cet appartement rénové récemment et lumineux. Situé au 1er étage, il comprend une entrée, une pièce à vivre avec vue dégagée sans vis à vis, une cuisine récente (2020), une chambre, une salle d'eau rénovée (2020) et wc. Parking sécurisé en extérieur Equipements : cuisine et salle d'eau rénové en 2020. Poêle à bois dans la pièce principale, ouverture possible entre la pièce à vivre et la cuisine, ballon d'eau chaude changé il y a 1 an, VMC. Copropriété de 12 lots - dont 6 lots habitation. (Pas de procédure en cours). Charges annuelles : 720 euros.
Voir plus

Référence: 9999999
Bien en copropriété. Nombre de lots : 12. Charges de copropriété : 720 €.
Honoraires à la charge du vendeur.
Barème des honoraires
DPE
A
B
C
D
E
F
G
GES
A
B
C
D
E
F
G

Prêt immobilier

Vous souhaitez connaître votre capacité d’emprunt et trouver le meilleur crédit immobilier ?
Réaliser une simulation gratuite

Appartement à SAINT-MALO
Appartement à SAINT-MALO
Appartement à SAINT-MALO
Appartement à SAINT-MALO
Appartement à SAINT-MALO
Appartement à SAINT-MALO
Appartement à SAINT-MALO
Ce site est protégé par reCAPTCHA la Politique de confidentialité et les Conditions d’utilisation de Google s’appliquent.
Obtenir un prêt immobilier au meilleur taux ?

En poursuivant votre navigation sans modifier vos paramètres, vous acceptez l'utilisation de cookies susceptibles de réaliser des statistiques de visite. Cliquez ici pour plus d'informations