Bénéficiez des services de nos partenaires locaux soigneusement sélectionnés
pour vous accompagner dans votre parcours d'achat immobilier

Au coeur du bourg, maison neuve, vie de plain-pied pmr, rt 2020.

— Le Temple-De-Bretagne 44360 —
367 500 €
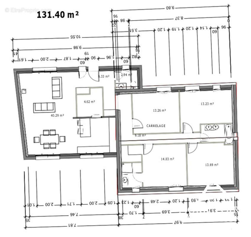
131 m² / 500 m²
5 pièces
parkingbalcon/terrassejardin

Nos partenaires locaux
Maison neuve plain-pied de 130 m2 sur terrain d’environ 500 m2 offrant toutes les prestations actuelles, une très belle pièce de vie de 46 m2 ouverte sur cuisine à personnaliser à votre goût.
La partie nuit est composée de quatre chambres dont une suite parentale avec dressing et salle d’eau. Une buanderie complète ce bien. Belles prestations avec pompe à chaleur, chauffage au sol, volets électriques… maison neuve en cours de construction, une personnalisation est possible.
Belle parcelle d’environ 500 m2.
Venez poser vos valises dans cette maison idéalement placée, à visiter en exclusivité avec votre agence Nord Loire Transactions. Visuels non contractuels.
 
Autres maisons disponibles : - une maison neuve d’env. 110 m2 sur terrain d’env. 150 m2 (5 pièces, 4 chambres) …………….. à 315 000 € fai, - une maison neuve d’env 140 m2 utiles sur terrain d’env. 250 m2 (5 pièces, 4 chambres) …………….. à 346 500 € fai,
 
Les informations sur les risques éventuels auxquels ce bien pourrait être exposé sont disponibles sur le site Géorisques : www.georisques.gouv.fr
Voir plus

Référence: P6846
Honoraires d'agence de 5% à la charge de l'acquéreur
Barème des honoraires

Prêt immobilier

Vous souhaitez connaître votre capacité d’emprunt et trouver le meilleur crédit immobilier ?
Réaliser une simulation gratuite

Maison à LE TEMPLE-DE-BRETAGNE
Maison à LE TEMPLE-DE-BRETAGNE
Maison à LE TEMPLE-DE-BRETAGNE
Maison à LE TEMPLE-DE-BRETAGNE
Maison à LE TEMPLE-DE-BRETAGNE
Ce site est protégé par reCAPTCHA la Politique de confidentialité et les Conditions d’utilisation de Google s’appliquent.
Obtenir un prêt immobilier au meilleur taux ?

En poursuivant votre navigation sans modifier vos paramètres, vous acceptez l'utilisation de cookies susceptibles de réaliser des statistiques de visite. Cliquez ici pour plus d'informations