Bénéficiez des services de nos partenaires locaux soigneusement sélectionnés
pour vous accompagner dans votre parcours d'achat immobilier

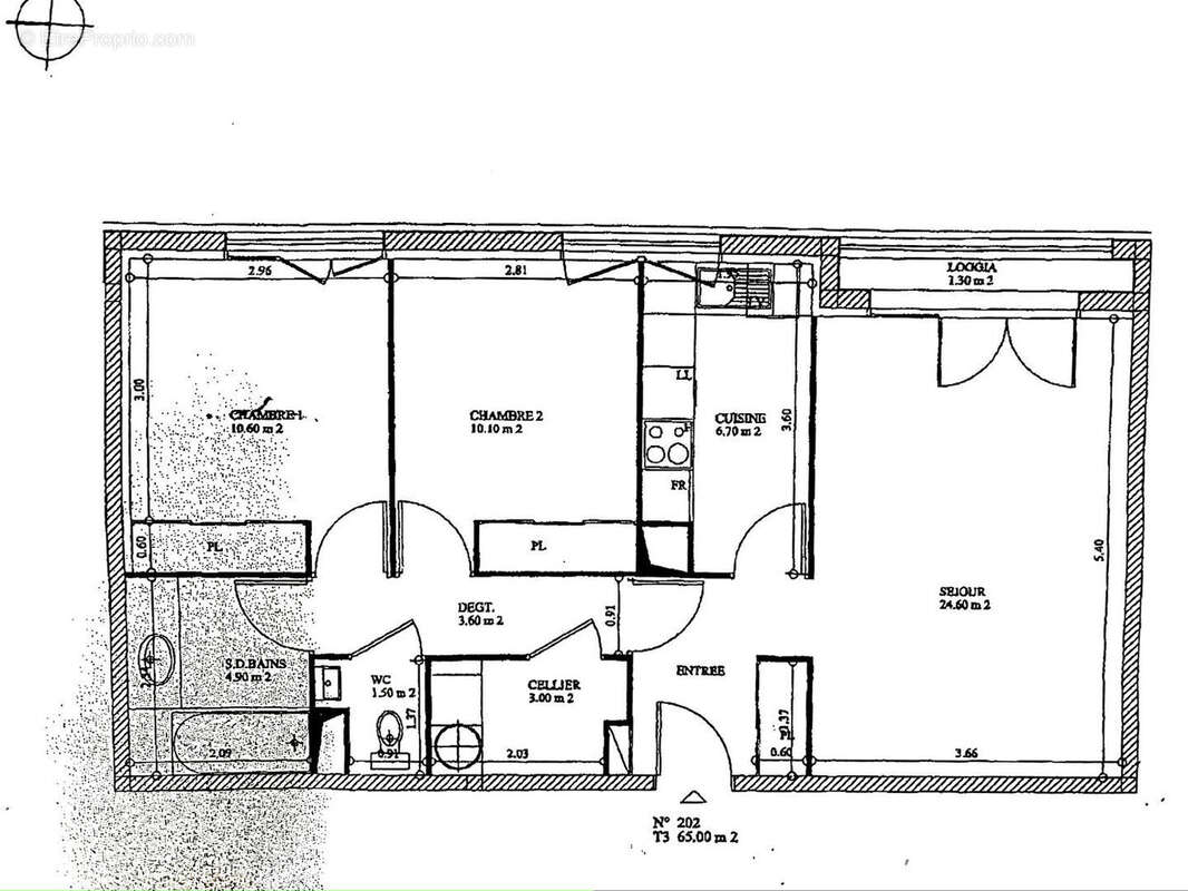
Appartement la teste 3 pièces 65 m2

— La Teste-De-Buch 33260 —
352 000 €
65 m²
3 pièces
parking

Nos partenaires locaux
La Teste, hyper centre, commerces, marché et gare à pied. Venez découvrir cet appartement lumineux avec vue dégagée de 65m² situé au 2ème étage avec ascenseur. L'appartement se compose d'un vaste séjour avec cuisine aménagée de 30m² donnant sur une loggia, de deux chambres avec placard, d'une salle d'eau, d'un cellier et d'un wc indépendant. Une place de parking aérienne sécurisée vient compléter le bien. Contactez nous dès maintenant pour organiser une visite ou pour tous renseignements complémentaires au [Coordonnées masquées]. Besoin de connaître la valeur de votre bien? Notre équipe se tient à votre disposition du lundi au samedi pour réaliser gratuitement l'estimation de votre bien. Copropriété de 174 lots - dont 54 lots habitation. (Pas de procédure en cours). Charges annuelles : 1560 euros.
Voir plus

Référence: 0570
Bien en copropriété. Nombre de lots : 174. Charges de copropriété : 1560 €.
Honoraires à la charge du vendeur.
Barème des honoraires
DPE
A
B
C
D
E
F
G
GES
A
B
C
D
E
F
G

Prêt immobilier

Vous souhaitez connaître votre capacité d’emprunt et trouver le meilleur crédit immobilier ?
Réaliser une simulation gratuite

Appartement à LA TESTE-DE-BUCH
Appartement à LA TESTE-DE-BUCH
Appartement à LA TESTE-DE-BUCH
Appartement à LA TESTE-DE-BUCH
Appartement à LA TESTE-DE-BUCH
Appartement à LA TESTE-DE-BUCH
Appartement à LA TESTE-DE-BUCH
Appartement à LA TESTE-DE-BUCH
Appartement à LA TESTE-DE-BUCH
Appartement à LA TESTE-DE-BUCH
Appartement à LA TESTE-DE-BUCH
Appartement à LA TESTE-DE-BUCH
Appartement à LA TESTE-DE-BUCH
Ce site est protégé par reCAPTCHA la Politique de confidentialité et les Conditions d’utilisation de Google s’appliquent.
Obtenir un prêt immobilier au meilleur taux ?

En poursuivant votre navigation sans modifier vos paramètres, vous acceptez l'utilisation de cookies susceptibles de réaliser des statistiques de visite. Cliquez ici pour plus d'informations