Bénéficiez des services de nos partenaires locaux soigneusement sélectionnés
pour vous accompagner dans votre parcours d'achat immobilier

Dpt Vendée (85), à vendre entre CHALLANS et NOIRMOUTIER à SAINT GERVAIS maison de bourg de 210 m² sur 879 m² de terrain clos av

— Saint-Gervais 85230 —
180 000 €
179 m² / 879 m²
7 pièces
parkingjardin

Nos partenaires locaux
Bienvenue à SAINT GERVAIS , agréable petite commune rétro-littorale du NORD/OUEST VENDEE située entre CHALLANS et NOIRMOUTIER ,
à 10 min de la MER et à 45 min de NANTES.

Le " tout à pied " est possible avec les commerces de proximité,
la poste, les écoles, médecins, dentiste, pharmacie et le marché de producteurs locaux tous les samedis matins place de l 'église...

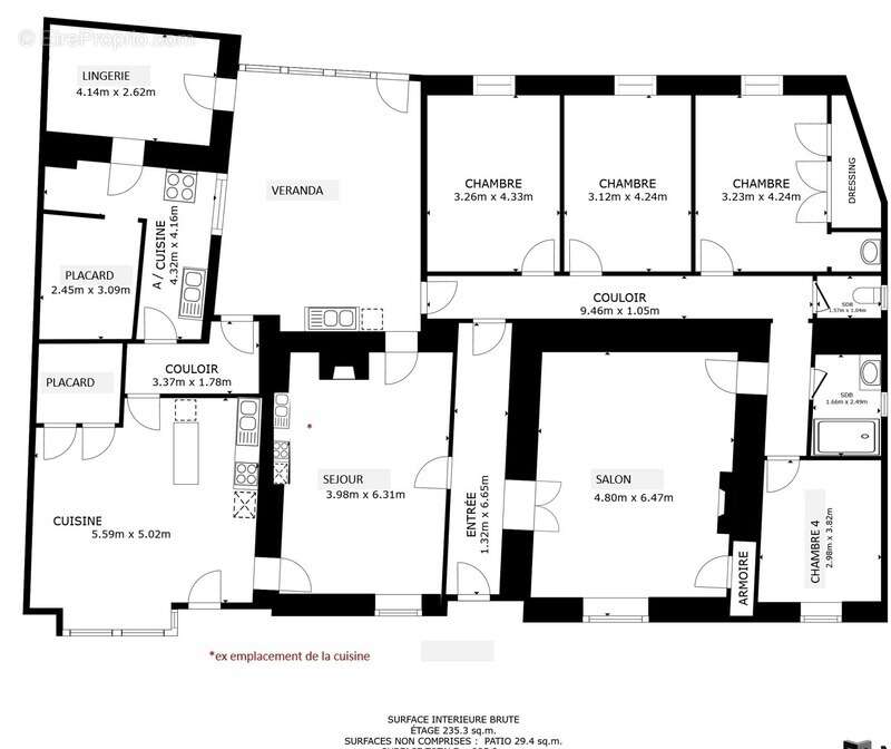
Au coeur du bourg, rue villebon, cette spacieuse maison de bourg de 210 m² possède de beaux volumes ou chacun pourra trouver son espace.

Le PLUS : Avec ce beau potentiel plusieurs possibilités s'offrent à vous, diviser, recevoir une grande famille, une activité professionnelle...
La maison se compose d'une entrée, d'une cuisine aménagée et équipée, d'une arrière-cuisine, d'un
séjour avec cheminée insert, d'un salon avec insert également, d'une véranda, d'une lingerie, de quatre chambres, d'une salle d'eau, d'un wc, d'une chaufferie, de deux garages, d'un fumoir,
Le terrain de 879 m² est clos, joliment paysagé et le puits est très appréciable pour le jardin.

A savoir : huisseries double vitrage, tout à l'égout,
isolation par l'extérieur , chauffage fioul et radiateurs en fonte...

VISITE IMMERSIVE SUR DEMANDE AVANT VISITE PHYSIQUE

Les honoraires sont à la charge du vendeur.
Les informations sur les risques auxquels ce bien est exposé sont disponibles sur le site Géorisques : www. georisques. gouv. fr.

Réseau Immobilier CAPIFRANCE - Votre agent commercial (RSAC N°851 460 212 - Greffe de RENNES) Gaëlle BRIEND Entrepreneur Individuel [Coordonnées masquées] - Réf.913979
Voir plus

Référence: 340939488737
Honoraires à la charge du vendeur.
DPE
A
B
C
D
E
F
G
GES
A
B
C
D
E
F
G
Maison à SAINT-GERVAIS
Maison à SAINT-GERVAIS
Maison à SAINT-GERVAIS
Maison à SAINT-GERVAIS
Maison à SAINT-GERVAIS
Maison à SAINT-GERVAIS
Maison à SAINT-GERVAIS
Maison à SAINT-GERVAIS
Maison à SAINT-GERVAIS
Maison à SAINT-GERVAIS
Maison à SAINT-GERVAIS
Maison à SAINT-GERVAIS
Maison à SAINT-GERVAIS
Maison à SAINT-GERVAIS
Maison à SAINT-GERVAIS
Maison à SAINT-GERVAIS
Maison à SAINT-GERVAIS
Maison à SAINT-GERVAIS
Maison à SAINT-GERVAIS
Maison à SAINT-GERVAIS
Maison à SAINT-GERVAIS
Maison à SAINT-GERVAIS
Maison à SAINT-GERVAIS
Maison à SAINT-GERVAIS
Maison à SAINT-GERVAIS
Maison à SAINT-GERVAIS
Géorisques

Les informations sur les risques auxquels ce bien est exposé sont disponibles sur le site Géorisques : www.georisques.gouv.fr

Ce site est protégé par hCaptcha Politique de confidentialité et Conditions d’utilisation s’appliquent.

En poursuivant votre navigation sans modifier vos paramètres, vous acceptez l'utilisation de cookies susceptibles de réaliser des statistiques de visite. Cliquez ici pour plus d'informations