Bénéficiez des services de nos partenaires locaux soigneusement sélectionnés
pour vous accompagner dans votre parcours d'achat immobilier

Voir tous les partenaires locaux

Paris 6e - MONNAIE - Duplex à vendre - 3 pièces - 63,57m² Carrez - 2 chambres.

— Paris-6e 75006 —
1 195 000 €
63 m²
3 pièces

Nos partenaires locaux
Votre rénovation globale
Rénovation d'intérieure - Aménagement - Décoration - Création de Cuisine Haut de gamme - SDB - Dressing.. Contactez le :
01 44 07 65 01 ou cliquez-ici
Votre rénovation énergétique
Cozynergy réalise vos travaux de rénovation énergétique, clé en main et aides déduites. Simulez votre projet ici :
cliquez-ici
Votre expert portes, portails
Spécialisée en Portail, Porte de garage, Portes d’entrées, Fenetres, Clôtures, Interphonie, Vidéo, Alarme
09 51 17 38 41 ou cliquez-ici
Votre designer agenceur
Rendez votre espace de vie aussi unique que vous ! Cuisiniste haut de gamme, nous réalisons tous vos projets sur-mesure.
01 43 29 18 17 ou cliquez-ici
Votre déménageur
Déménagement national ou international ? Bénéficiez d'un accompagnement sur mesure à chaque étape.
04 78 97 33 43 ou cliquez-ici
Votre cuisiniste sur mesure
Fabricant français de Cuisine, Salle De Bains, Dressing. Aménagements à votre mesure
01 45 48 66 32 ou cliquez-ici

Voir tous les partenaires locaux

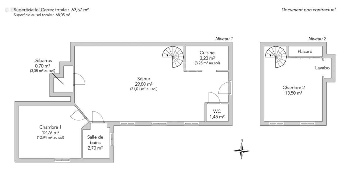
Situé au cœur du 6e arrondissement, dans une charmante copropriété édifiée en 1600 et parfaitement entretenue, ce beau duplex de 63,57m² loi Carrez et 68,05m² au sol aux premier et deuxième étages s'impose comme un lieu paisible, au calme absolu sur cour, et bénéficie du charme de l'ancien.
Au premier niveau, vous découvrirez une spacieuse pièce de vie dotée d'une belle hauteur sous plafond, une cuisine séparée et équipée, une chambre, une salle de bains, des toilettes indépendantes et un espace buanderie.
À l’étage, une seconde chambre avec la possibilité d’y aménager une salle de douche.
Le bien offre de nombreux rangements, un plan optimisé et une atmosphère chaleureuse.
Coup de cœur assuré pour cet appartement qui conjugue authenticité, calme et fonctionnalité.
Une cave complète cet ensemble.
Voir plus

Référence: 1832CHMDEP
Barème des honoraires
DPE
A
B
C
D
E
F
G
GES
A
B
C
D
E
F
G
Appartement à PARIS-6E
Appartement à PARIS-6E
Appartement à PARIS-6E
Appartement à PARIS-6E
Appartement à PARIS-6E
Appartement à PARIS-6E
Appartement à PARIS-6E
Appartement à PARIS-6E
Appartement à PARIS-6E
Appartement à PARIS-6E
Appartement à PARIS-6E
Appartement à PARIS-6E
Appartement à PARIS-6E
Appartement à PARIS-6E
Géorisques

Les informations sur les risques auxquels ce bien est exposé sont disponibles sur le site Géorisques : www.georisques.gouv.fr

Ce site est protégé par hCaptcha Politique de confidentialité et Conditions d’utilisation s’appliquent.