Bénéficiez des services de nos partenaires locaux soigneusement sélectionnés
pour vous accompagner dans votre parcours d'achat immobilier

Appartement 2 pièces, à deux pas de la mer !

— Menton 06500 —
230 000 €
42 m²
2 pièces
ascenseur

Nos partenaires locaux
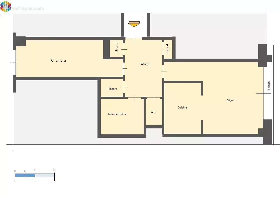
Dans un quartier résidentiel prisé et paisible, à seulement quelques mètres des plages, découvrez cet appartement 2 pièces de 40 m², situé au 1er étage avec ascenseur, dans une résidence bien entretenue.

Il se compose de :

* Une entrée avec placards intégrés
* Un séjour lumineux avec cuisine ouverte
* Un petit balcon exposé devant le séjour
* Une petite chambre
* Une salle de bains
* Un WC séparé

Une cave en sous-sol complète ce bien.

Localisation idéale :
Commodités, gare, marché, vieux port et centre-ville accessibles à pied

Parfait pour une résidence principale, secondaire ou un investissement locatif.

Contactez-nous dès maintenant pour plus d’informations ou pour organiser une visite !
Voir plus

Référence: 254
Barème des honoraires
DPE
A
B
C
D
E
F
G
GES
A
B
C
D
E
F
G

Prêt immobilier

Vous souhaitez connaître votre capacité d’emprunt et trouver le meilleur crédit immobilier ?
Réaliser une simulation gratuite

Appartement à MENTON
Appartement à MENTON
Appartement à MENTON
Appartement à MENTON
Appartement à MENTON
Appartement à MENTON
Appartement à MENTON
Appartement à MENTON
Appartement à MENTON
Appartement à MENTON
Appartement à MENTON
Appartement à MENTON
Ce site est protégé par reCAPTCHA la Politique de confidentialité et les Conditions d’utilisation de Google s’appliquent.
Obtenir un prêt immobilier au meilleur taux ?

En poursuivant votre navigation sans modifier vos paramètres, vous acceptez l'utilisation de cookies susceptibles de réaliser des statistiques de visite. Cliquez ici pour plus d'informations