Exceptionnel : magnifique chalet 5 chambres - vue mont blanc à combloux (74920)

— Combloux 74920 —
1 360 000 €
184 m²
7 pièces
parking

EXCEPTIONNEL : MAGNIFIQUE CHALET - Vue Mont Blanc à Combloux (74920) dans un secteur calme et recherché.

Ces chalets sont construits dans un environnement privilégié au coeur d'un hameau préservé avec une vue imprenable sur la chaine du Mont blanc et la chaine des Fiz.
Le programme comprends 3 chalets, le premier sera livré en 2026 puis les deux autres suivront. Les travaux ont commencé.

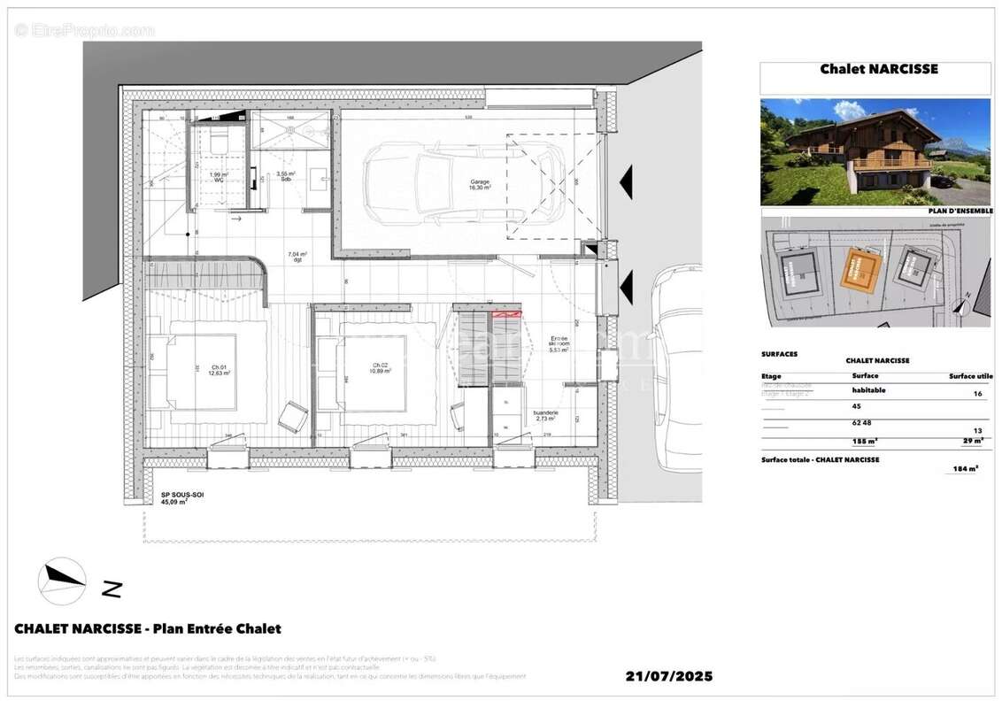
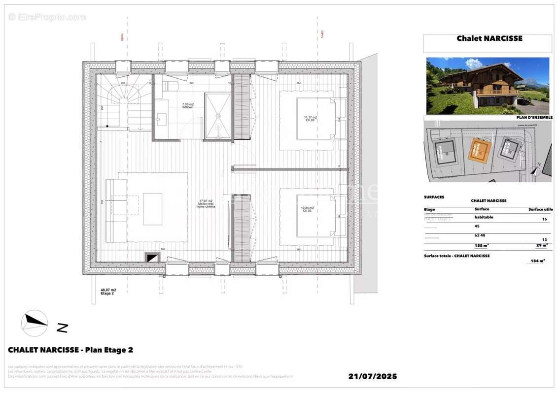
Ce chalet indépendant répartit sur 3 niveaux a une superficie totale de 182 m².

Il se compose ainsi :

Au rez-de-chaussée :
Un hall d'entrée/skiroom, une buanderie, 2 belles chambres, une grande salle de bain avec double vasque, toilettes séparés, garage.

Au 1er étage :
Vous trouverez un grand salon/séjour avec cheminée donnant sur deux terrasses très bien exposées avec une vue imprenable sur le Mont-Blanc, les aiguilles de Chamonix et la chaine des Fiz. La cuisine est entièrement équipée et donne sur le salon. Vous avez également un cellier.

Deux grandes baies vitrées apportent de la lumière à cette grande pièce de vie et facilitent l'accès aux terrasses.

A cet étage se trouve également une chambre master avec dressing et salle d'eau. Toilettes séparés. La master donne sur la terrasse ce qui vous permets de profiter pleinement de la vue.

Au 2eme étage : vous pourrez découvrir deux belles chambres, une salle d'eau avec toilettes et un bel espace TV/home cinéma.

Le chalet bénéficie, en plus de son garage de 16 m², de deux places de parking extérieures.

Les finitions et matériaux sont haut de gamme. La notice descriptive est envoyée sur demande.
N'hésitez pas à nous contacter pour toute d'information sur ce chalet ou pour organiser une visite.

Ce chalet sera un parfait pied à terre à la montagne dans un environnement exceptionnel ou une résidence principale idéale - Genève est à moins d'une heure, Megève à 15 minutes et Lyon à 2h.

Combloux, village-station fait partie du domaine skiable "Les Portes du Mont Blanc" qui relient Combloux à Megève - le Jaillet, La Giettaz et Cordon.
Voir plus

Référence: MDH2025051
Barème des honoraires

Prêt immobilier

Vous souhaitez connaître votre capacité d’emprunt et trouver le meilleur crédit immobilier ?
Réaliser une simulation gratuite

Maison à COMBLOUX
Maison à COMBLOUX
Maison à COMBLOUX
Maison à COMBLOUX
Maison à COMBLOUX
Maison à COMBLOUX
Maison à COMBLOUX
Maison à COMBLOUX
Maison à COMBLOUX
Maison à COMBLOUX
Maison à COMBLOUX
Maison à COMBLOUX
Maison à COMBLOUX
Maison à COMBLOUX
Ce site est protégé par reCAPTCHA la Politique de confidentialité et les Conditions d’utilisation de Google s’appliquent.
Obtenir un prêt immobilier au meilleur taux ?

En poursuivant votre navigation sans modifier vos paramètres, vous acceptez l'utilisation de cookies susceptibles de réaliser des statistiques de visite. Cliquez ici pour plus d'informations