Bénéficiez des services de nos partenaires locaux soigneusement sélectionnés
pour vous accompagner dans votre parcours d'achat immobilier

Quartier de janas maison indépendante avec deux logements, garage & terrain piscinable

— La Seyne-Sur-Mer 83500 —
575 000 €
149 m² / 438 m²
7 pièces
parkingjardin

Nos partenaires locaux
VISITES VIRTUELLES ET VIDEO DES DEUX APPARTEMENTS SUR DEMANDE - QUARTIER DE JANAS MAISON INDÉPENDANTE AVEC DEUX LOGEMENTS, GARAGE & TERRAIN PISCINABLE -
La Seyne-sur-Mer Quartier prisé des Moulieres / Route de Janas168,10 m2 de surface utile 149 m2 de surface habitable réparties entre2 habitations indépendantes Garage de 12 m2 Terrain arboré de 438 m2 piscinable Panneaux solaires
Prix : 575 000 € FAI, taxe foncière 2300€
Rare à la vente et uniquement chez FIDES IMMOBILIER : découvrez cette maison individuelle en R+1 située dans l’un des secteurs les plus convoités de La Seyne-sur-Mer. Une opportunité idéale pour une grande famille, un projet locatif, ou une résidence principale avec logement indépendant.
La maison se compose de deux niveaux entièrement autonomes, reliés par un escalier intérieur mais également accessibles de manière totalement indépendante depuis l’extérieur avec deux portails distincts (un portail et un portillon). La porte du garage et le portail sont motorisés et s’ouvrent électriquement.
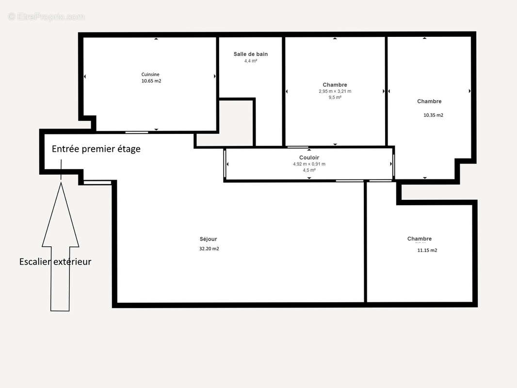
REZ-DE-CHAUSSÉE 65,05 m2 habitables :


Un grand séjour lumineux


Une cuisine ouverte équipée


Deux chambres confortables


Une salle d’eau avec WC et un WC séparé


ÉTAGE 84 m2 habitables :


Un appartement indépendant avec séjour, cuisine équipée, 3 chambres


Salle d’eau, WC séparé


Accès par grand escalier extérieur ou escalier intérieur


PRESTATIONS & CONFORT :
Électricité entièrement refaiteHuisseries en double vitrage avec fenêtres oscillo-battantesVolets en bon étatGarage fermé de 20 m2Terrain piscinable et arboréChaque niveau dispose de sa propre cuisine, salle d'eau, WC, et espace buanderie idéal pour deux familles ou projet locatif.
EMPLACEMENT PREMIUM CALME & PRATIQUE


Quartier Janas / Les Moulieres : environnement résidentiel, verdoyant et recherché


Moins de 10 minutes à pied des commerces et arrêts de bus


Écoles à seulement 300 m, accessibles à pied ou en bus


À proximité immédiate de la forêt de Janas, des plages et des axes principaux


Ce bien offre un potentiel exceptionnel : que ce soit pour une résidence principale évolutive, une maison intergénérationnelle, ou un investissement locatif mixte (location à l’année ou saisonnière).
EXCLUSIVITÉ FIDES IMMOBILIER Ne manquez pas cette opportunité rare dans un secteur très recherché. Contactez-nous dès maintenant pour organiser une visite.
Voir plus

Référence: 84
Bien en copropriété. Nombre de lots : 2.
Honoraires à la charge du vendeur.
Barème des honoraires
DPE
A
B
C
D
E
F
G
GES
A
B
C
D
E
F
G

Prêt immobilier

Vous souhaitez connaître votre capacité d’emprunt et trouver le meilleur crédit immobilier ?
Réaliser une simulation gratuite

Maison à LA SEYNE-SUR-MER
Maison à LA SEYNE-SUR-MER
Maison à LA SEYNE-SUR-MER
Maison à LA SEYNE-SUR-MER
Maison à LA SEYNE-SUR-MER
Maison à LA SEYNE-SUR-MER
Maison à LA SEYNE-SUR-MER
Maison à LA SEYNE-SUR-MER
Maison à LA SEYNE-SUR-MER
Maison à LA SEYNE-SUR-MER
Maison à LA SEYNE-SUR-MER
Maison à LA SEYNE-SUR-MER
Maison à LA SEYNE-SUR-MER
Maison à LA SEYNE-SUR-MER
Maison à LA SEYNE-SUR-MER
Maison à LA SEYNE-SUR-MER
Maison à LA SEYNE-SUR-MER
Maison à LA SEYNE-SUR-MER
Maison à LA SEYNE-SUR-MER
Ce site est protégé par reCAPTCHA la Politique de confidentialité et les Conditions d’utilisation de Google s’appliquent.
Obtenir un prêt immobilier au meilleur taux ?

En poursuivant votre navigation sans modifier vos paramètres, vous acceptez l'utilisation de cookies susceptibles de réaliser des statistiques de visite. Cliquez ici pour plus d'informations