Bénéficiez des services de nos partenaires locaux soigneusement sélectionnés
pour vous accompagner dans votre parcours d'achat immobilier

Levallois - 2 pièces - 280 000 fai

— Levallois-Perret 92300 —
280 000 €
57 m²
2 pièces
balcon/terrasseascenseur

Nos partenaires locaux
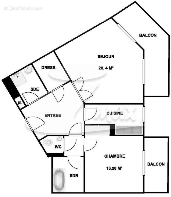
Au sein d'une résidence de services situé côté Neuilly et à proximité du métro Anatole France, au 5ème étage avec ascenseur, appartement lumineux offrant une vue dégagée. Il se compose d'une entrée, d'un séjour ouvrant sur un balcon, d'une cuisine séparée, d'une chambre avec un second balcon, d'une salle d'eau, d'une buanderie, d'un dressing et d'un Wc séparé. Une cave en sous-sol complète ce bien. DPE : D Les informations sur les risques auxquels ce bien est exposé sont disponibles sur le site Géorisques : www.georisques.gouv.fr (3.50 % honoraires TTC à la charge de l'acquéreur.) Copropriété de 210 lots - dont 75 lots habitation. (Pas de procédure en cours). Charges annuelles : 15000 euros.
Voir plus

Référence: 1114
Bien en copropriété. Nombre de lots : 210. Charges de copropriété : 15000 €.
Honoraires d'agence de 3.5% à la charge de l'acquéreur
Barème des honoraires
DPE
A
B
C
D
E
F
G
GES
A
B
C
D
E
F
G

Prêt immobilier

Vous souhaitez connaître votre capacité d’emprunt et trouver le meilleur crédit immobilier ?
Réaliser une simulation gratuite

Appartement à LEVALLOIS-PERRET
Appartement à LEVALLOIS-PERRET
Appartement à LEVALLOIS-PERRET
Appartement à LEVALLOIS-PERRET
Ce site est protégé par reCAPTCHA la Politique de confidentialité et les Conditions d’utilisation de Google s’appliquent.
Obtenir un prêt immobilier au meilleur taux ?

En poursuivant votre navigation sans modifier vos paramètres, vous acceptez l'utilisation de cookies susceptibles de réaliser des statistiques de visite. Cliquez ici pour plus d'informations