Bénéficiez des services de nos partenaires locaux soigneusement sélectionnés
pour vous accompagner dans votre parcours d'achat immobilier

Maison de ville 3 pièces

— Conches-En-Ouche 27190 —
138 000 €
74 m² / 35 m²
3 pièces
parkingjardin

Nos partenaires locaux
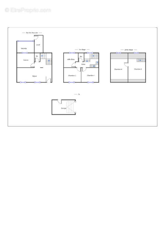
Réf 4696. Centre ville de Conches, maison de 74 m2 avec cour. La maison se compose au rdc d'un salon et cuisine séparée. À l'étage, un pallier dessert deux chambres, une salle de bains et WC séparé. Chauffage gaz de ville. Double vitrage PVC. Raccordement au tout à l'égout. Fibre déployée. Cour fermée de 35 m2.

Référence: 4696
Bien en copropriété. Nombre de lots : 6.
Honoraires à la charge du vendeur.
Barème des honoraires
DPE
A
B
C
D
E
F
G
GES
A
B
C
D
E
F
G

Prêt immobilier

Vous souhaitez connaître votre capacité d’emprunt et trouver le meilleur crédit immobilier ?
Réaliser une simulation gratuite

Maison à CONCHES-EN-OUCHE
Maison à CONCHES-EN-OUCHE
Maison à CONCHES-EN-OUCHE
Maison à CONCHES-EN-OUCHE
Maison à CONCHES-EN-OUCHE
Maison à CONCHES-EN-OUCHE
Maison à CONCHES-EN-OUCHE
Maison à CONCHES-EN-OUCHE
Maison à CONCHES-EN-OUCHE
Maison à CONCHES-EN-OUCHE
Maison à CONCHES-EN-OUCHE
Maison à CONCHES-EN-OUCHE
Maison à CONCHES-EN-OUCHE
Maison à CONCHES-EN-OUCHE
Maison à CONCHES-EN-OUCHE
Maison à CONCHES-EN-OUCHE
Maison à CONCHES-EN-OUCHE
Maison à CONCHES-EN-OUCHE
Maison à CONCHES-EN-OUCHE
Ce site est protégé par reCAPTCHA la Politique de confidentialité et les Conditions d’utilisation de Google s’appliquent.
Obtenir un prêt immobilier au meilleur taux ?

En poursuivant votre navigation sans modifier vos paramètres, vous acceptez l'utilisation de cookies susceptibles de réaliser des statistiques de visite. Cliquez ici pour plus d'informations