Bénéficiez des services de nos partenaires locaux soigneusement sélectionnés
pour vous accompagner dans votre parcours d'achat immobilier

Maison 170m² à gevigney-et-mercey

— Gevigney-Et-Mercey 70500 —
41 500 €
170 m² / 600 m²
4 pièces
jardin

Nos partenaires locaux
Votre agence ERA IMMOBILIER VESOUL vous propose à la vente :

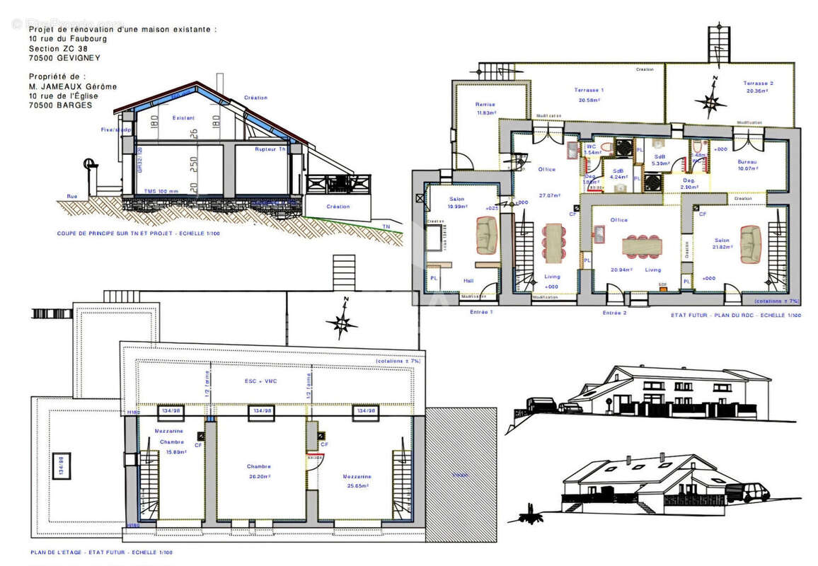
sur la commune de Gevigney et Mercey située à moins de 5 minutes de Jussey et de tous les commerces de proximité et école, et à moins de 30 minutes de Vesoul, une maison à rénover quasiment entièrement, d'une superficie d'environ 170 m2.
La toiture est entièrement neuve et isolé, la dalle de l'étage est également neuve. Des gaines électriques sont présentes dans la maison. Un mur de soutènement a aussi édité édifié afin de pouvoir accueillir une terrasse.
Le tout sur un terrain de 6 ares au calme.

Amoureux de la rénovation, ce bien est fait pour vous, que ce soit pour votre résidence principale, ou pour réaliser un investissement (voir projet dans les photos).
L'Etat des Risques et Pollution peut être consulté sur https://www.georisques.gouv.fr
Voir plus

Référence: 542

Prêt immobilier

Vous souhaitez connaître votre capacité d’emprunt et trouver le meilleur crédit immobilier ?
Réaliser une simulation gratuite

Maison à GEVIGNEY-ET-MERCEY
Maison à GEVIGNEY-ET-MERCEY
Maison à GEVIGNEY-ET-MERCEY
Maison à GEVIGNEY-ET-MERCEY
Maison à GEVIGNEY-ET-MERCEY
Maison à GEVIGNEY-ET-MERCEY
Maison à GEVIGNEY-ET-MERCEY
Maison à GEVIGNEY-ET-MERCEY
Maison à GEVIGNEY-ET-MERCEY
Ce site est protégé par reCAPTCHA la Politique de confidentialité et les Conditions d’utilisation de Google s’appliquent.
Obtenir un prêt immobilier au meilleur taux ?

En poursuivant votre navigation sans modifier vos paramètres, vous acceptez l'utilisation de cookies susceptibles de réaliser des statistiques de visite. Cliquez ici pour plus d'informations