Bureaux - environnement de qualité

— Courrieres 62710 —
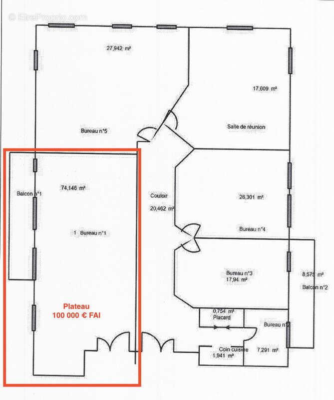
100 000 €
74 m²

IMMEUBLE DE QUALITÉ (2012) BIEN ENTRETENU et SECURISÉ - ENVIRONNEMENT AGREABLE - FACILITÉ DE STATIONNEMENT
PLATEAU LUMINEUX DE 74 M2 + 2 PLACES DE PARKING + BALCON : JOLIE VUE SUR CHAMPS
PROCHE AXE ROUTIER - PARC TERTIAIRE EN ZONE FRANCHE - 1er étage
-------> IMPORTANT : possibilité d'acheter en complément un plateau aménagé avec kitchenette et bureaux de 120 m2 attenant à celui-ci (+ ses 2 places de parking également), pour 180 000 € FAI, soit un total de 194 m2 pour 4 places de stationnement.

Sur la commune de Courrières, dans un parc tertiaire en zone franche, nous vous proposons ce plateau, d'une surface totale de 74,14 m2, lumineux et très agréable pour un quotidien professionnel. L'accès aux principaux axes routiers est rapide.
Au 1er étage d'un immeuble sécurisé de 3 niveaux, bâti en 2012, l'ensemble est entièrement ouvert, ce qui vous permettra une large surface de developpement et possède un agréable balcon privatif.
Pour faciliter votre stationnement, 2 places de parking sont incluses dans la vente.
Les prestations sont de qualité : fenêtres aluminium de belle taille, interphone + digicode, chauffage électrique, éclairage LED, dalle déton, tout à l'égout. Les parties communes sont accueillantes et en très bon état général.
A propos de la copropriété, celle-ci n'a pas de procédure en cours, elle comprend 111 lots dont 87 places de stationnement.

Contactez-nous pour une visite ou plus de renseignements :
Audrey LAINÉ au [Coordonnées masquées] ou par mail [Coordonnées masquées]
Vanessa MENUT : [Coordonnées masquées] ou par mail [Coordonnées masquées]
Agents commerciaux : no 918 977 794 - No 899 953 475
Abithéa, agence immobilière passionnée
Informations sur les risques auxquels ce bien est exposé sont disponibles sur le site Géorisques:WWW.georisques.gouv.fr
Voir plus

Référence: 1414
Bien en copropriété. Nombre de lots : 3.
Honoraires d'agence de 6.38% à la charge de l'acquéreur
Barème des honoraires

Prêt immobilier

Vous souhaitez connaître votre capacité d’emprunt et trouver le meilleur crédit immobilier ?
Réaliser une simulation gratuite

Commerce à COURRIERES
Commerce à COURRIERES
Commerce à COURRIERES
Commerce à COURRIERES
Commerce à COURRIERES
Commerce à COURRIERES
Commerce à COURRIERES
Commerce à COURRIERES
Commerce à COURRIERES
Commerce à COURRIERES
Commerce à COURRIERES
Commerce à COURRIERES
Commerce à COURRIERES
Commerce à COURRIERES
Commerce à COURRIERES
Commerce à COURRIERES
Commerce à COURRIERES
Ce site est protégé par reCAPTCHA la Politique de confidentialité et les Conditions d’utilisation de Google s’appliquent.
Obtenir un prêt immobilier au meilleur taux ?

En poursuivant votre navigation sans modifier vos paramètres, vous acceptez l'utilisation de cookies susceptibles de réaliser des statistiques de visite. Cliquez ici pour plus d'informations