Bénéficiez des services de nos partenaires locaux soigneusement sélectionnés
pour vous accompagner dans votre parcours d'achat immobilier

Maison saint medard en jalles proche du centre

— Saint-Medard-En-Jalles 33160 —
317 000 €
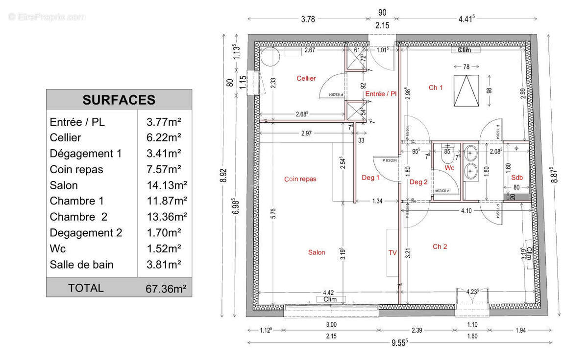
67 m² / 123 m²
3 pièces
jardin

Nos partenaires locaux
33160 ST MEDARD EN JALLES - BORDEAUX METROPOLE A proximité du centre ville, accès à pieds aux commerces, l'agence l'Adresse vous propose cette maison neuve. De plain pied, à l'entrée vous découvrez des placards de rangement, un cellier puis une vaste pièce de vie avec cuisine aménagée et équipée et le salon donnant sur le jardin sans vis à vis. Le coin nuit dispose de deux chambres avec chacune accès à la salle d'eau et un wc indépendant. Les travaux seront finis avant la vente définitive ( enduit de façade, pose des sols, équipements salle d'eau, des climatisations, du ballon thermodynamique...) photo n°1 est le visuel de la cuisine. Prix de vente 317 000 euros honoraires à la charge de l'acquéreur. Prix net vendeur : 300 000 euros Ne tardez pas à visiter ce bien rare sur le secteur. Vous aussi, faîtes appel à votre agence l'Adresse pour estimer, vendre, louer, gérer votre bien. Estimation offerte ! (5.67 % honoraires TTC à la charge de l'acquéreur.)
Voir plus

Honoraires d'agence de 5.67% à la charge de l'acquéreur
Barème des honoraires

Prêt immobilier

Vous souhaitez connaître votre capacité d’emprunt et trouver le meilleur crédit immobilier ?
Réaliser une simulation gratuite

Maison à SAINT-MEDARD-EN-JALLES
Maison à SAINT-MEDARD-EN-JALLES
Maison à SAINT-MEDARD-EN-JALLES
Maison à SAINT-MEDARD-EN-JALLES
Maison à SAINT-MEDARD-EN-JALLES
Ce site est protégé par reCAPTCHA la Politique de confidentialité et les Conditions d’utilisation de Google s’appliquent.
Obtenir un prêt immobilier au meilleur taux ?

En poursuivant votre navigation sans modifier vos paramètres, vous acceptez l'utilisation de cookies susceptibles de réaliser des statistiques de visite. Cliquez ici pour plus d'informations