Terrain constructible

— Megeve 74120 —
2 200 000 €
1 180 m²

HAMILTON vous propose ce terrain de 1 180 m², idéalement situé dans l'un des secteurs les plus prisés de Megève.

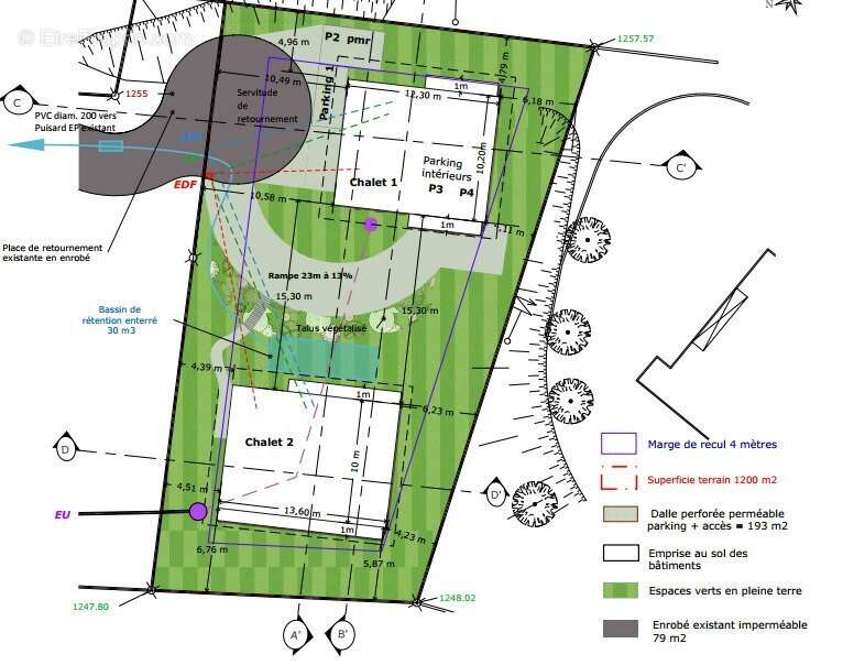
Bénéficiant d'une vue dégagée et d'un environnement calme en bout d'impasse, ce bien rare offre intimité et tranquillité. Le terrain est vendu avec un permis de construire purgé de tout recours pour la réalisation de deux chalets d'une surface totale de 436 m².

Le projet est proposé clef en main, avec les travaux de terrassement déjà engagés.

Une opportunité rare pour un investissement serein et un projet personnalisé au cœur de Megève.
Voir plus

Référence: 95002CDC070C4AAF
Honoraires à la charge du vendeur.

Prêt immobilier

Vous souhaitez connaître votre capacité d’emprunt et trouver le meilleur crédit immobilier ?
Réaliser une simulation gratuite

Terrain à MEGEVE
Terrain à MEGEVE
Terrain à MEGEVE
Ce site est protégé par reCAPTCHA la Politique de confidentialité et les Conditions d’utilisation de Google s’appliquent.
Obtenir un prêt immobilier au meilleur taux ?

En poursuivant votre navigation sans modifier vos paramètres, vous acceptez l'utilisation de cookies susceptibles de réaliser des statistiques de visite. Cliquez ici pour plus d'informations