Bénéficiez des services de nos partenaires locaux soigneusement sélectionnés
pour vous accompagner dans votre parcours d'achat immobilier

Pornic - type 2

— Pornic 44210 —
251 900 €
56 m²
2 pièces

Nos partenaires locaux
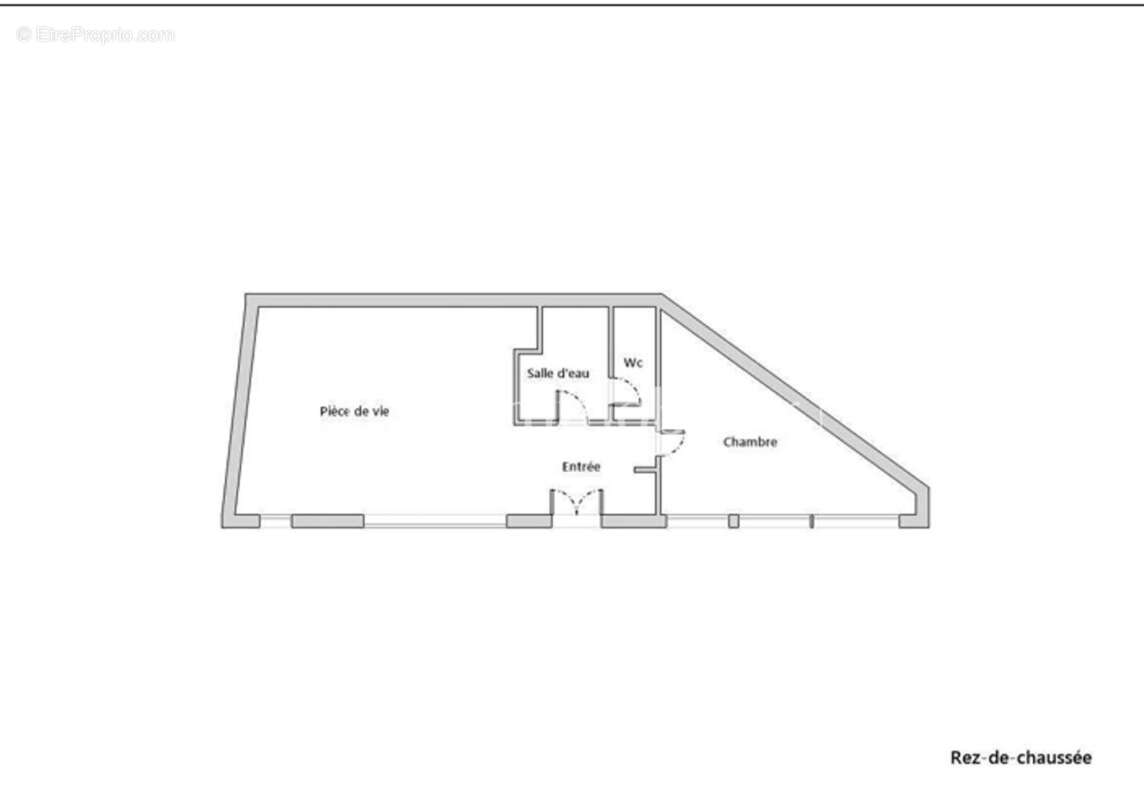
COTE IMMOBILIER PORNIC- Situé entre le Vieux-Port et la gare, ce bel appartement de type 2 se trouve dans un immeuble intimiste de seulement deux lots. Il se compose d'une agréable pièce de vie avec cuisine aménagée, d'une chambre confortable, ainsi que d'une salle d'eau avec WC. Idéal pour un premier achat, un pied-à-terre ou un investissement locatif. COTE IMMOBILIER PORNIC 9 rue de Verdun 44210 PORNIC [Coordonnées masquées] www.cote-immobilier.com (4.96 % honoraires TTC à la charge de l'acquéreur.)
Voir plus

Référence: 4123
Honoraires d'agence de 4.96% à la charge de l'acquéreur
Barème des honoraires
DPE
A
B
C
D
E
F
G
GES
A
B
C
D
E
F
G

Prêt immobilier

Vous souhaitez connaître votre capacité d’emprunt et trouver le meilleur crédit immobilier ?
Réaliser une simulation gratuite

Appartement à PORNIC
Appartement à PORNIC
Appartement à PORNIC
Appartement à PORNIC
Appartement à PORNIC
Appartement à PORNIC
Appartement à PORNIC
Appartement à PORNIC
Ce site est protégé par reCAPTCHA la Politique de confidentialité et les Conditions d’utilisation de Google s’appliquent.
Obtenir un prêt immobilier au meilleur taux ?

En poursuivant votre navigation sans modifier vos paramètres, vous acceptez l'utilisation de cookies susceptibles de réaliser des statistiques de visite. Cliquez ici pour plus d'informations