Bénéficiez des services de nos partenaires locaux soigneusement sélectionnés
pour vous accompagner dans votre parcours d'achat immobilier

Appartement 76m² à saint-laurent-du-var

— Saint-Laurent-Du-Var 06700 —
497 000 €
76 m²
4 pièces

Nos partenaires locaux
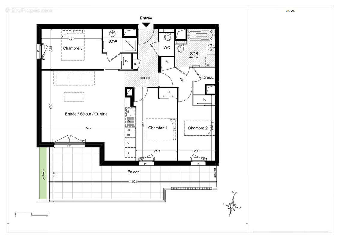
Cet appartement T4 lumineux et fonctionnel offre une surface habitable optimisée d'environ 77 m², idéalement agencé pour une vie familiale aisée.
L'entrée dessert directement un séjour spacieux prolongé par une belle terrasse exposée, baignant les pièces de jour d'une lumière naturelle abondante.
La cuisine indépendante adjointe à un cellier astucieux facilite les repas quotidiens, tandis que les trois chambres généreuses (dont une suite parentale avec dressing potentiel) et la terrasse spacieuse pour des moments de détente en extérieur garantissent intimité et confort pour tous. Les commodités modernes comme la salle de bains et le WC séparé complètent harmonieusement cet espace de vie rare à vendre, parfait pour investir ou s'installer sereinement.
Contactez nous au [Coordonnées masquées]
Nathalie Lagand
Era immobilier
Saint Laurent Du Var
Voir plus

Référence: 1770
Appartement à SAINT-LAURENT-DU-VAR
Appartement à SAINT-LAURENT-DU-VAR
Appartement à SAINT-LAURENT-DU-VAR
Géorisques

Les informations sur les risques auxquels ce bien est exposé sont disponibles sur le site Géorisques : www.georisques.gouv.fr

Ce site est protégé par hCaptcha Politique de confidentialité et Conditions d’utilisation s’appliquent.

En poursuivant votre navigation sans modifier vos paramètres, vous acceptez l'utilisation de cookies susceptibles de réaliser des statistiques de visite. Cliquez ici pour plus d'informations