Bénéficiez des services de nos partenaires locaux soigneusement sélectionnés
pour vous accompagner dans votre parcours d'achat immobilier

Chalet en cours de construction à Praz-Sur-Arly (74120)

— Praz-Sur-Arly 74120 —
1 995 000 €
235 m²
7 pièces
parkingbalcon/terrassejardin

Nos partenaires locaux
Chalet haut-de-gamme à Praz-Sur-Arly (74120)

Situé sur les hauteurs du village dans un secteur recherché, au calme, ce chalet typiquement montagnard de 235m² est en cours de construction sur une parcelle de 600m².

A 5 minutes du centre village et à proximité immédiate des pistes de skis (ski in/ski out), il offre des prestations de qualité et une vue panoramique sur les montagnes environnantes.

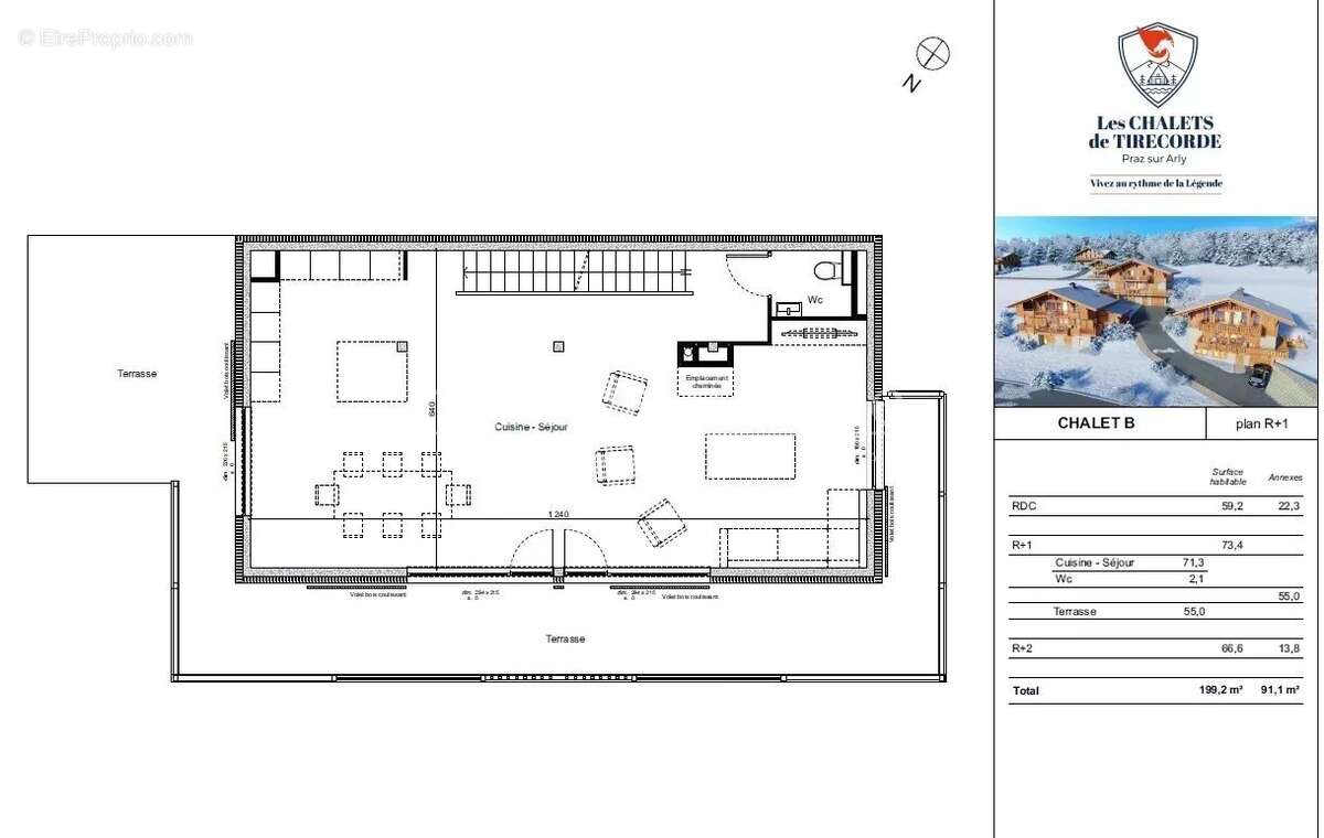
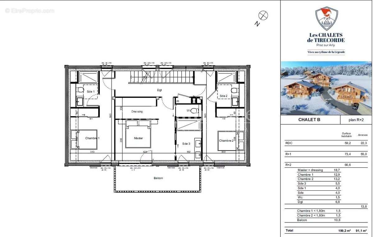
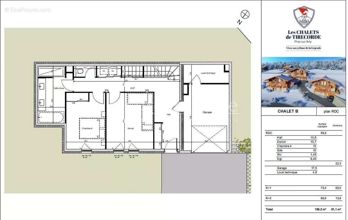
Il comprend :

- Au RDC : une grande entrée, une chambre, une chambre dortoir, une salle de bains, une buanderie, un WC indépendant, un garage, un local technique.

- Au 1er niveau : une grande pièce de vie lumineuse de 73m² avec une cuisine ouverte, un emplacement cheminée et un accès à une terrasse de 55m² exposée nord, ouest et est, un WC indépendant.

- Au 2ème niveau : une chambre master avec dressing, salle de douches privative, WC et un accès à un balcon ; 2 grandes chambres avec chacune une salle de douches privative et un WC.

Le chalet bénéficie d'un beau jardin autour du chalet et de 2 places de parking extérieures.

Rare à la vente.

Vente en VEFA (Garantie financière d'achèvement, assurance dommage ouvrage).

Frais de notaire réduits.

Praz Sur Arly se situe à 5 min de Megève, 1h de Genève et 2h de Lyon.

Cette station fait partie du domaine skiable de l’Espace Diamant avec 200 kms de pistes qui relient Flumet, Notre Dame de Bellecombe, Crest Voland, les Saisies et Hauteluce.
Voir plus

Référence: MDH2025058
Barème des honoraires
Maison à PRAZ-SUR-ARLY
Maison à PRAZ-SUR-ARLY
Maison à PRAZ-SUR-ARLY
Maison à PRAZ-SUR-ARLY
Maison à PRAZ-SUR-ARLY
Maison à PRAZ-SUR-ARLY
Maison à PRAZ-SUR-ARLY
Maison à PRAZ-SUR-ARLY
Maison à PRAZ-SUR-ARLY
Maison à PRAZ-SUR-ARLY
Maison à PRAZ-SUR-ARLY
Maison à PRAZ-SUR-ARLY
Géorisques

Les informations sur les risques auxquels ce bien est exposé sont disponibles sur le site Géorisques : www.georisques.gouv.fr

Ce site est protégé par hCaptcha Politique de confidentialité et Conditions d’utilisation s’appliquent.