Bénéficiez des services de nos partenaires locaux soigneusement sélectionnés
pour vous accompagner dans votre parcours d'achat immobilier

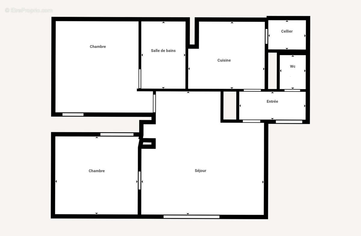
Appartement mantes la jolie 3 pièce(s) 57.46 m2 avec cave et stationnement

— Mantes-La-Jolie 78200 —
122 000 €
57 m²
3 pièces
parking

Nos partenaires locaux
En quête d'un appartement de type F3 dans une résidence calme et sécurisée pour un investissement ou pour une résidence principale ? Celui-ci pourrait bien correspondre à votre recherche. Situé au 2e étage, cet appartement très lumineux comprend : une entrée desservant un séjour, une cuisine avec cellier, 2 chambres, une salle de bains et un WC. Le bien dispose également d'une cave et d'une place de stationnement en extérieur. Chauffage individuel au gaz. Charges courantes mensuelles : 100 euros, Fonds de travaux : 5 euros/ mois. Précédent loyer : 756 euros hors charges / mois. N'hésitez pas à visualiser la visite virtuelle. Bonne visite et à bientôt. Copropriété de 54 lots (Pas de procédure en cours). Charges annuelles : 1202.64 euros. Nathalie BOUVIER (EI) Agent Commercial - Numéro RSAC : 883 173 718 - Versailles.
Voir plus

Référence: T1779
Bien en copropriété. Nombre de lots : 54. Charges de copropriété : 1202 €.
Honoraires à la charge du vendeur.
Barème des honoraires
DPE
A
B
C
D
E
F
G
GES
A
B
C
D
E
F
G

Prêt immobilier

Vous souhaitez connaître votre capacité d’emprunt et trouver le meilleur crédit immobilier ?
Réaliser une simulation gratuite

Appartement à MANTES-LA-JOLIE
Appartement à MANTES-LA-JOLIE
Appartement à MANTES-LA-JOLIE
Appartement à MANTES-LA-JOLIE
Appartement à MANTES-LA-JOLIE
Appartement à MANTES-LA-JOLIE
Appartement à MANTES-LA-JOLIE
Appartement à MANTES-LA-JOLIE
Appartement à MANTES-LA-JOLIE
Appartement à MANTES-LA-JOLIE
Ce site est protégé par reCAPTCHA la Politique de confidentialité et les Conditions d’utilisation de Google s’appliquent.
Obtenir un prêt immobilier au meilleur taux ?

En poursuivant votre navigation sans modifier vos paramètres, vous acceptez l'utilisation de cookies susceptibles de réaliser des statistiques de visite. Cliquez ici pour plus d'informations