Bénéficiez des services de nos partenaires locaux soigneusement sélectionnés
pour vous accompagner dans votre parcours d'achat immobilier

Merlimont - belle villa 5 chambres avec garage

— Merlimont 62155 —
598 000 €
169 m² / 2 163 m²
6 pièces
parkingbalcon/terrassejardin

Nos partenaires locaux
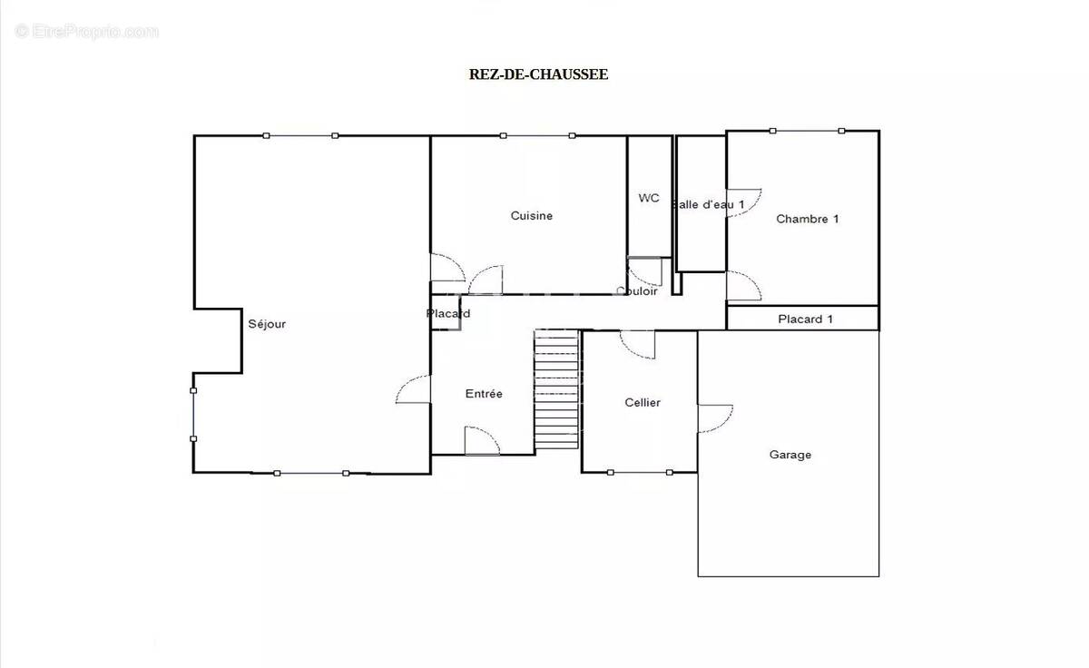
Charmante villa de 169m² à rafraîchir disposant de beaux volumes, érigée sur une parcelle arborée et végétalisée de 2163m² comprenant :

Au rez-de-chaussée :
Un hall d'entrée desservant :
- Un vaste séjour/salon avec cheminée feu de bois et baie coulissante permettant l'accès à la terrasse et au jardin
- Une cuisine aménagée et équipée (réfrigérateur/congélateur, plaque, hotte aspirante, four et lave-vaisselle),
- Un wc,
- Une suite parentale avec espace bain comprenant vasque et douche.

À l'étage :
Un palier desservant :
- 2 chambres donnant sur l'avant
- 1 chambre sur l'arrière
- Une salle de bain avec meuble vasque, baignoire en grès et wc
- Un espace à aménager pouvant être transformé en suite parentale

Extérieurs :
- 2 à 4 places de parking
- Garage avec accès par l'intérieur de la villa également,
- Terrasse, beau jardin paysagé avec puit classé sur l'arrière

Les + :
- Huisseries et menuiseries en bois massif
- Volets manuels et électriques
- Un garage
- Extension possible ou division parcellaire du terrain avec surface constructible
- Deux entrées possibles
- Terrain clos avec portail manuel
- Possibilité de faire une piscine avec demande à l'urbanisme
- Beaux volumes

Renseignements complémentaires sur demande

Les informations sur les risques auxquels ce bien est exposé sont disponibles sur le site Géorisques : www.georisques.gouv.fr
Voir plus

Barème des honoraires
DPE
A
B
C
D
E
F
G
GES
A
B
C
D
E
F
G
Maison à MERLIMONT
Maison à MERLIMONT
Maison à MERLIMONT
Maison à MERLIMONT
Maison à MERLIMONT
Géorisques

Les informations sur les risques auxquels ce bien est exposé sont disponibles sur le site Géorisques : www.georisques.gouv.fr

Ce site est protégé par hCaptcha Politique de confidentialité et Conditions d’utilisation s’appliquent.

En poursuivant votre navigation sans modifier vos paramètres, vous acceptez l'utilisation de cookies susceptibles de réaliser des statistiques de visite. Cliquez ici pour plus d'informations