Bénéficiez des services de nos partenaires locaux soigneusement sélectionnés
pour vous accompagner dans votre parcours d'achat immobilier

En exclusivité à SAULIEU: Elégance pour cette maison de caractère

— Saulieu 21210 —
300 000 €
200 m² / 1 514 m²
8 pièces
jardin

Nos partenaires locaux
Un bien d’exception au cœur de la Bourgogne
À Saulieu, découvrez cette maison de caractère aux prestations haut de gamme, offrant environ 200 m² habitables dans un environnement calme et verdoyant.
Derrière son architecture pleine de charme, cette propriété séduit dès l’entrée par son escalier arrondi et son perron abrité, annonçant un intérieur raffiné et parfaitement entretenu.
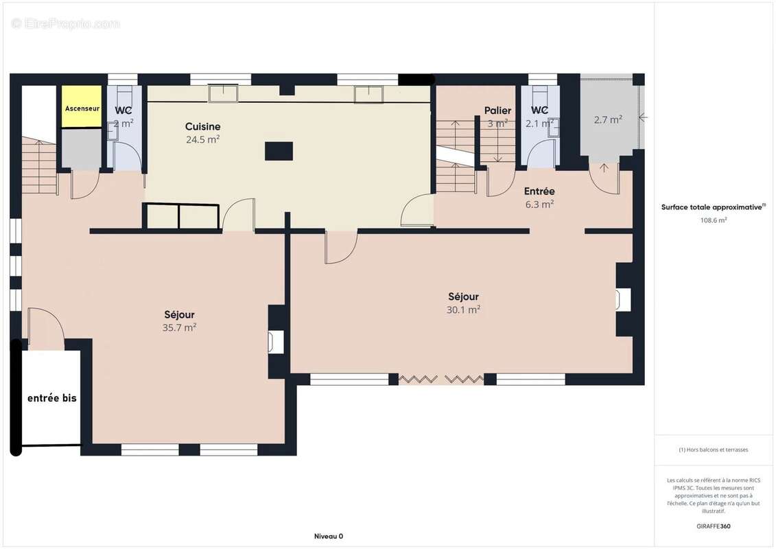
Elle comprend au rez-de-chaussée surélevé un hall d’entrée, avec escalier d’accès à l’étage et au sous-sol, un long couloir dessert d’une part le séjour double, une salle à manger/salon avec trois portes-fenêtres donnant sur une terrasse exposée sud-ouest avec cheminée de style, et d’autre part, un WC et un placard. Au fond du couloir, une grande cuisine aménagée avec ilôt central, un salon avec cheminée Louis XV et deux portes-fenêtres donnant sur la terrasse, un bureau, et un dégagement avec ascenseur desservant tous les niveaux.
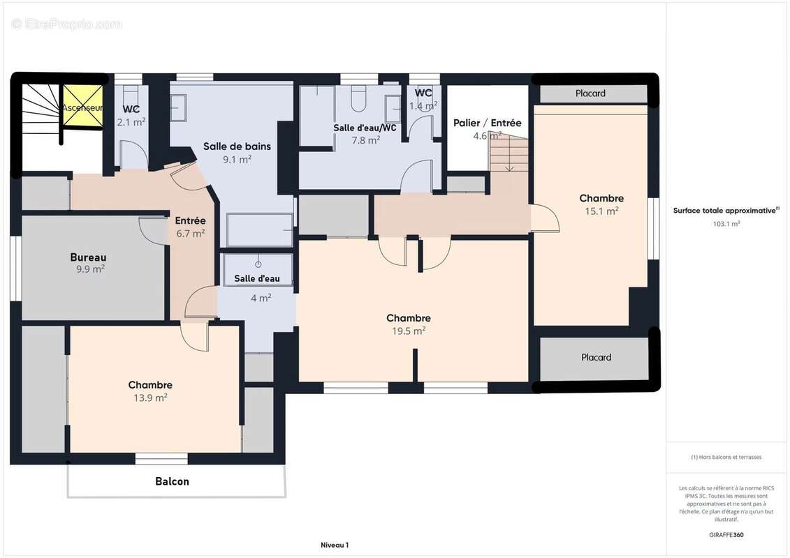
À l’étage : quatre chambres dont deux avec dressing, 2 salles de bains dont une avec WC, 1 salle d'eau et 1 WC. Couloir et dégagement vers l’ascenseur distribuant les 3 niveaux.
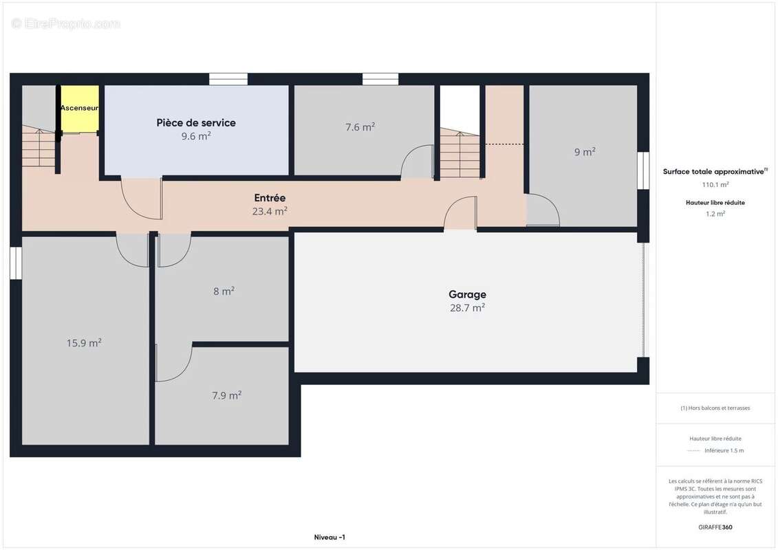
Au sous-sol : garage, chaufferie, deux caves, buanderie avec douche, et deux pièces.
Surface du sous-sol : environ 98 m².
Volets roulants sur les fenêtres et portes fenêtres.
Terrain attenant d'environ 1500 m².
Voir plus

Référence: 4723
Barème des honoraires
DPE
A
B
C
D
E
F
G
GES
A
B
C
D
E
F
G
Maison à SAULIEU
Maison à SAULIEU
Maison à SAULIEU
Maison à SAULIEU
Maison à SAULIEU
Maison à SAULIEU
Maison à SAULIEU
Maison à SAULIEU
Maison à SAULIEU
Maison à SAULIEU
Maison à SAULIEU
Maison à SAULIEU
Maison à SAULIEU
Maison à SAULIEU
Maison à SAULIEU
Maison à SAULIEU
Maison à SAULIEU
Maison à SAULIEU
Maison à SAULIEU
Maison à SAULIEU
Maison à SAULIEU
Maison à SAULIEU
Maison à SAULIEU
Maison à SAULIEU
Maison à SAULIEU
Maison à SAULIEU
Maison à SAULIEU
Maison à SAULIEU
Géorisques

Les informations sur les risques auxquels ce bien est exposé sont disponibles sur le site Géorisques : www.georisques.gouv.fr

Ce site est protégé par hCaptcha Politique de confidentialité et Conditions d’utilisation s’appliquent.