Bénéficiez des services de nos partenaires locaux soigneusement sélectionnés
pour vous accompagner dans votre parcours d'achat immobilier

Plateau à aménager dans bâtisse ancienne curis-au-mont-d’or

— Curis-Au-Mont-D'or 69250 —
201 000 €
65 m²
3 pièces
parkingpiscine

Nos partenaires locaux
RARE À LA VENTE OPPORTUNITÉ À SAISIR !
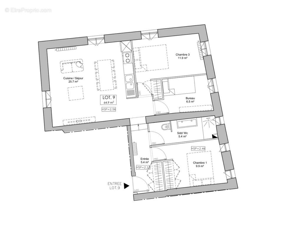
Au cœur du très prisé village de Curis-au-Mont-d’Or, niché dans un environnement calme et verdoyant, découvrez ce magnifique plateau brut de 65 m2 à aménager, situé dans une grande bâtisse ancienne en cours de réhabilitation., et qui profite d'un parc de plus d'un hectare avec piscine.
Ce bien de caractère saura vous séduire par ses prestations anciennes conservées :


Hauteur sous plafond généreuse,


Tomettes anciennes,


Moulures d’époque,
Le tout offrant un charme authentique et un fort potentiel de rénovation.


Idéal pour un projet sur-mesure : résidence principale, pied-à-terre ou investissement.
Localisation : Curis-au-Mont-d'Or, à proximité des commodités, transports en commun et nature environnante.
Surface : 65 m2 à aménager Type de bien : plateau brut dans bâtisse ancienne en réhabilitationExtérieur : Jardin
2 places de stationnement en sus (12000€)
Travaux à prévoir (aménagement intérieur selon vos goûts)
Contactez-nous dès aujourd’hui pour organiser une visite et imaginer votre futur chez-vous dans ce lieu chargé d’histoire et de charme.
Cette réhabilitation propose 14 lots principaux ainsi que des stationnements aériens.
Plusieurs lots disponibles du T1 au T4. Photos et et dossier complet sur demande.
Les informations sur les risques auxquels ce bien est exposé sont disponibles sur le site Géorisques : www.georisques.gouv.fr
Voir plus

Bien en copropriété. Nombre de lots : 14.
Barème des honoraires

Prêt immobilier

Vous souhaitez connaître votre capacité d’emprunt et trouver le meilleur crédit immobilier ?
Réaliser une simulation gratuite

Appartement à CURIS-AU-MONT-D'OR
Appartement à CURIS-AU-MONT-D'OR
Appartement à CURIS-AU-MONT-D'OR
Ce site est protégé par reCAPTCHA la Politique de confidentialité et les Conditions d’utilisation de Google s’appliquent.
Obtenir un prêt immobilier au meilleur taux ?

En poursuivant votre navigation sans modifier vos paramètres, vous acceptez l'utilisation de cookies susceptibles de réaliser des statistiques de visite. Cliquez ici pour plus d'informations