Bénéficiez des services de nos partenaires locaux soigneusement sélectionnés
pour vous accompagner dans votre parcours d'achat immobilier

Maison 5 pièces 120m2 à toulon sur parcelle de 653m2

— Toulon 83000 —
570 000 €
120 m² / 653 m²
5 pièces
parkingjardin

Nos partenaires locaux
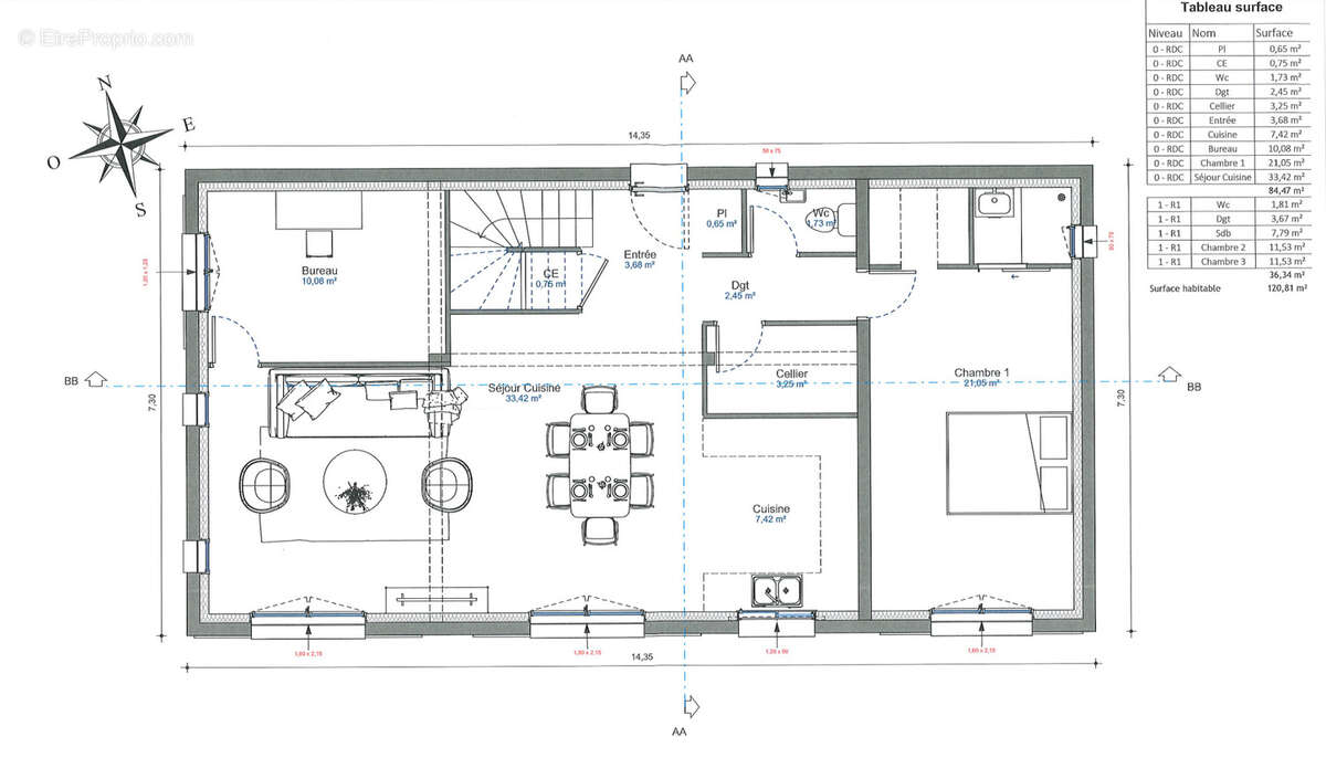
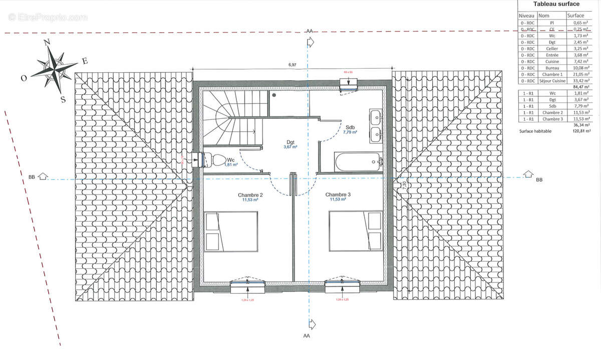
Maison à construire à TOULON - quartier Silbas / Loubière
L'agence Majesthis est heureuse de vous proposer ce beau projet de maison de deux niveaux à bâtir sur un agréable terrain au calme absolu dans une impasse quartier Siblas / La Loubière à Toulon
Proposition de maison de 120m2 exposée plein Sud (à définir selon vos envies) et composée de :
- au rez-de-chaussée : séjour / cuisine ouverte de 33m2, une suite parentale (chambre + salle d'eau), un WC séparé, un cellier et un grand bureau
- au premier étage : salle de bains, WC, deux belles chambres.
- deux places de stationnements privatives
- le reste en nature de jardin. Le terrain est viabilisé en bordure.
Emprise au sol jusqu'à 20% sur la parcelle.
Prix du terrain : 349000€ frais d'agence inclus Prix de la maison : à partir de 221000€ (peut varier selon les options choisies) hors terrassement, cuisine, peintures intérieures et chauffage.
Le terrain est en cours de viabilisation . Maison bâtie par MAISONS VERTES DU VAR (La Valette du Var)
N'hésitez pas à nous contacter pour plus de renseignements .
Voir plus

Référence: 249
Honoraires à la charge du vendeur.
Barème des honoraires

Prêt immobilier

Vous souhaitez connaître votre capacité d’emprunt et trouver le meilleur crédit immobilier ?
Réaliser une simulation gratuite

Maison à TOULON
Maison à TOULON
Maison à TOULON
Maison à TOULON
Maison à TOULON
Maison à TOULON
Maison à TOULON
Maison à TOULON
Ce site est protégé par reCAPTCHA la Politique de confidentialité et les Conditions d’utilisation de Google s’appliquent.
Obtenir un prêt immobilier au meilleur taux ?

En poursuivant votre navigation sans modifier vos paramètres, vous acceptez l'utilisation de cookies susceptibles de réaliser des statistiques de visite. Cliquez ici pour plus d'informations