Bénéficiez des services de nos partenaires locaux soigneusement sélectionnés
pour vous accompagner dans votre parcours d'achat immobilier

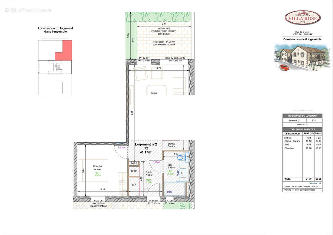
Appartement neuf - ballan mire 2 pièce(s) 41.17 m2 - jardin et parking

— Ballan-Mire 37510 —
192 000 €
41 m²
2 pièces
parkingbalcon/terrasse

Nos partenaires locaux
VILLA ROSE est une résidence intimiste aux prestations haut de gamme, composée de seulement 8 appartements, nichée au coeur d'un écrin de verdure, à proximité immédiate de la gare, du centre-ville et du parc Beauverger. Un équilibre parfait entre nature, confort de vie et attractivité urbaine. Aux abords de Tours, Ballan-Miré bénéficie d'une excellente accessibilité grâce à la proximité des axes TGV, autoroutiers et aériens reliant Paris au Grand Ouest. Alliant tranquillité résidentielle et dynamisme métropolitain, la commune séduit par son cadre de vie verdoyant, ses équipements modernes et sa qualité de service. Pensée comme une architecture à vivre, cette petite copropriété allie design contemporain, prestations de qualité et confort absolu : Les points forts de la résidence : 2 T2, 4 T3 et 2 T4 aux volumes généreux et lumineux. Jardin privatif, terrasse et parking pour chaque logement (14 places au total) Cuisine aménagée et équipée Parquet en chêne contrecollé, carrelage et faïence grand format en grès-cérame Dressing sur mesure toute hauteur Chauffage par pompe à chaleur avec radiateurs design Performance énergétique : classement maximum B Éligible au Prêt à Taux Zéro (PTZ) La livraison de l'ensemble du projet est prévue pour le 2ème Trimestre 2027. N'hésitez pas à contacter notre spécialiste programme neuf (4.00 % honoraires TTC à la charge de l'acquéreur.) Copropriété de 22 lots - dont 8 lots habitation. (Pas de procédure en cours). Charges annuelles : 700 euros.
Voir plus

Référence: 573
Bien en copropriété. Nombre de lots : 22. Charges de copropriété : 700 €.
Honoraires d'agence de 4% à la charge de l'acquéreur
Barème des honoraires
DPE
A
B
C
D
E
F
G
GES
A
B
C
D
E
F
G

Prêt immobilier

Vous souhaitez connaître votre capacité d’emprunt et trouver le meilleur crédit immobilier ?
Réaliser une simulation gratuite

Appartement à BALLAN-MIRE
Appartement à BALLAN-MIRE
Appartement à BALLAN-MIRE
Appartement à BALLAN-MIRE
Appartement à BALLAN-MIRE
Ce site est protégé par reCAPTCHA la Politique de confidentialité et les Conditions d’utilisation de Google s’appliquent.
Obtenir un prêt immobilier au meilleur taux ?

En poursuivant votre navigation sans modifier vos paramètres, vous acceptez l'utilisation de cookies susceptibles de réaliser des statistiques de visite. Cliquez ici pour plus d'informations