Bénéficiez des services de nos partenaires locaux soigneusement sélectionnés
pour vous accompagner dans votre parcours d'achat immobilier

Livry-gargan - appartement f3 dernier étage + grande terrasse

— Livry-Gargan 93190 —
315 000 €
67 m²
3 pièces
parkingbalcon/terrasse

Nos partenaires locaux
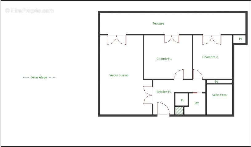
SIA Immobilier vous propose en exclusivité : Un bel appartement F3 de 67m2 avec une grande terrasse de 28m2 (vue dégagée, sans vis-à-vis). Situé au dernier étage d'une résidence de standing situé au 23 Boulevard de la République.
Agencement : Entrée avec dressing, grand salon avec cuisine ouverte équipée (accès terrasse), 2 chambres avec dressing (accès terrasse), salle d'eau moderne (douche à l'italienne), WC séparé.
Atouts : Parquet point de Hongrie, climatisation, volets électriques. Cave et parking inclus. Possibilité d'un 2ème parking en sus.
Points forts : Résidence sécurisée et bien entretenue (aucun travaux à prévoir). Emplacement idéal : transports en commun à proximité.
Opportunité rare : Libre de toute occupation, aucun travaux à prévoir (appartement et copropriété). Aucune procédure en cours.
Contactez-nous vite pour une visite !
Informations complémentaires : Honoraires : Charge Vendeur - Net Vendeur : 310 000€ - Copropriété de 38 lots à usage d’habitation, de commerce et de bureaux- Charges Générales de copropriété : 364 € / trimestrielles - Taxe foncière : 1913 € - Millième de copropriété (339/10 000) - Classement du logement en matière de performance énergétique (DPE) : C 52 Kwh/m2/an d'énergie finale- Montant estimé des dépenses annuelles d’énergie pour un usage standard entre 710 et 1 1010 €, indexés sur les années 2021 à 2023 - Les informations sur les risques auxquels ce bien est exposé sont disponibles sur le site Géorisques : www.georisques.gouv.fr
Voir plus

Bien en copropriété. Nombre de lots : 38. Charges de copropriété : 1454 €.
Honoraires à la charge du vendeur.
DPE
A
B
C
D
E
F
G
GES
A
B
C
D
E
F
G

Prêt immobilier

Vous souhaitez connaître votre capacité d’emprunt et trouver le meilleur crédit immobilier ?
Réaliser une simulation gratuite

Appartement à LIVRY-GARGAN
Appartement à LIVRY-GARGAN
Appartement à LIVRY-GARGAN
Appartement à LIVRY-GARGAN
Appartement à LIVRY-GARGAN
Appartement à LIVRY-GARGAN
Appartement à LIVRY-GARGAN
Ce site est protégé par reCAPTCHA la Politique de confidentialité et les Conditions d’utilisation de Google s’appliquent.
Obtenir un prêt immobilier au meilleur taux ?

En poursuivant votre navigation sans modifier vos paramètres, vous acceptez l'utilisation de cookies susceptibles de réaliser des statistiques de visite. Cliquez ici pour plus d'informations