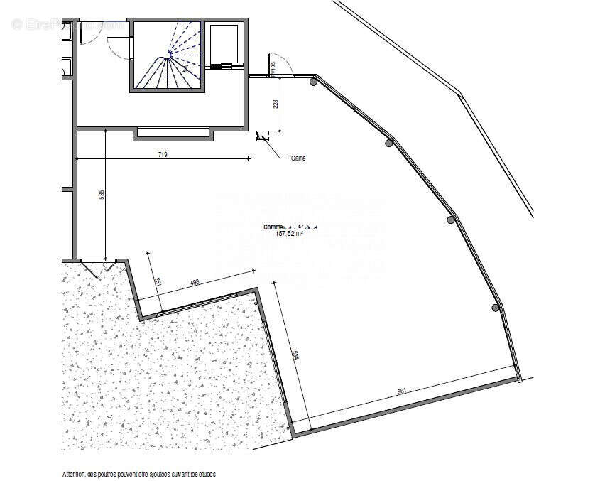
Commerce 158m² à brignais

— Brignais 69530 —
491 462 €
158 m²
1 pièce

Emplacement n° 1
Vous souhaitez implanter votre activité commerciale à Brignais ?
Vous voulez investir dans des murs commerciaux ?
Ne tardez pas à vous renseigner, cette surface est très rare sur Brignais.

Local livré brut, vitrines posées, fluides en attente, à aménager en fonction de votre activité.
Gaine d'extraction 500mm

Brignais est une ville très dynamique à 25 minutes de Lyon :
13000 habitants, transports en commun, collège et Lycée, 4 écoles élémentaires (Dont 1 privé)
7500 emplois dans la commune, plusieurs zone industrielles.
40000 habitants et plus de 20000 emplois à moins de 10 minutes en voiture.

Ce bien vous est présenté par Guy BOISSERIN pour le cabinet RESEAU BROKERS®
Pour toute information complémentaire : [Coordonnées masquées]

RESEAU BROKERS® est le premier cabinet immobilier d'entreprise structuré en réseau de mandataires. Nous maillons avec notre équipe de 70 Brokers une grande partie du territoire national pour accompagner nos entreprises clientes dans leurs recherches de commerces, bureaux, locaux d'activités, immeubles et fonciers.
www.reseau-brokers.com

Honoraires à la charge du vendeur. Dans une copropriété de 50 lots. Aucune procédure n'est en cours. Non soumis au DPE. Les informations sur les risques auxquels ce bien est exposé sont disponibles sur le site Géorisques : georisques.gouv.fr.

Votre conseiller AVINIM RESEAU BROKERS : Guy BOISSERIN
Agent commercial (Entreprise individuelle)
RSAC 433958055
RCP 7953190/S17301065
Voir plus

Référence: VP44150-BROKERS
Bien en copropriété. Nombre de lots : 50.
Honoraires à la charge du vendeur.
Barème des honoraires

Prêt immobilier

Vous souhaitez connaître votre capacité d’emprunt et trouver le meilleur crédit immobilier ?
Réaliser une simulation gratuite

Commerce à BRIGNAIS
Commerce à BRIGNAIS
Commerce à BRIGNAIS
Commerce à BRIGNAIS
Ce site est protégé par reCAPTCHA la Politique de confidentialité et les Conditions d’utilisation de Google s’appliquent.
Obtenir un prêt immobilier au meilleur taux ?

En poursuivant votre navigation sans modifier vos paramètres, vous acceptez l'utilisation de cookies susceptibles de réaliser des statistiques de visite. Cliquez ici pour plus d'informations