Bénéficiez des services de nos partenaires locaux soigneusement sélectionnés
pour vous accompagner dans votre parcours d'achat immobilier

Chatou : locaux professionnels (184 m²) en vente

— Chatou 78400 —
735 000 €
184 m²

Nos partenaires locaux
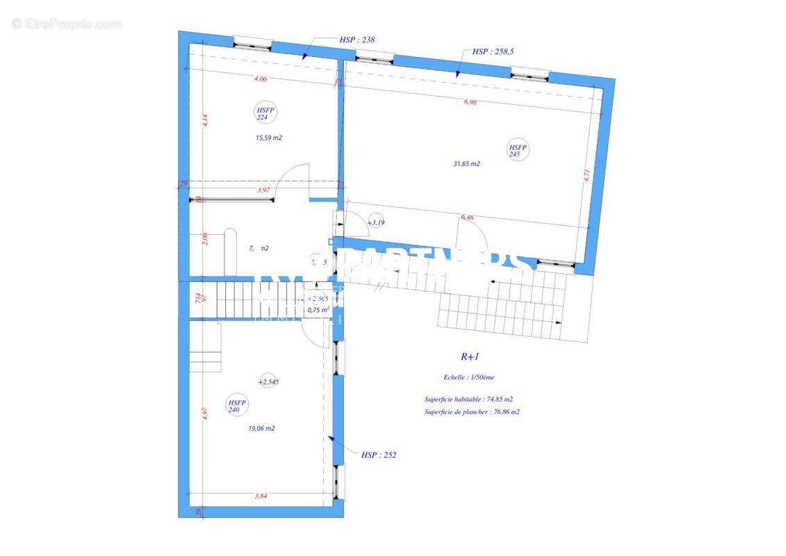
KW Partners présente une maison individuelle à usage mixte (commercial et habitation) édifiée sur un terrain de 180m2. Elle est organisée de la manière suivante : - Au rez-de-chaussée, un local commercial de 68m2 vendu loué avec escalier menant au 1e étage - Au premier niveau, un local commercial de 74.85m2 vendu loué. Ce niveau dispose également d'une entrée indépendante. Chauffage avec pompe à chaleur et climatisation. Les 2 étages peuvent être séparés. Les lots du RDC et du R+1 sont loués pour un montant de 38 386 € HCHT/an - Sous combles, un appartement vendu loué de 39.52m2 carrez (58.62m2 au sol). Ce bien est loué pour un montant de 7 582 € HC / an. Chauffage gaz. - Un sous-sol de 23m2 Petite cour permettant de stationner 2 véhicules. Le terrain comprend une servitude de passage. Assurance PNO : 504 € Annuel. Taxe foncière 2023: 2 234 € Contactez-moi au [Coordonnées masquées] ou par mail [Coordonnées masquées]
Voir plus

Référence: 362161
DPE
A
B
C
D
E
F
G
GES
A
B
C
D
E
F
G

Prêt immobilier

Vous souhaitez connaître votre capacité d’emprunt et trouver le meilleur crédit immobilier ?
Réaliser une simulation gratuite

Commerce à CHATOU
Commerce à CHATOU
Commerce à CHATOU
Commerce à CHATOU
Commerce à CHATOU
Commerce à CHATOU
Commerce à CHATOU
Ce site est protégé par reCAPTCHA la Politique de confidentialité et les Conditions d’utilisation de Google s’appliquent.
Obtenir un prêt immobilier au meilleur taux ?

En poursuivant votre navigation sans modifier vos paramètres, vous acceptez l'utilisation de cookies susceptibles de réaliser des statistiques de visite. Cliquez ici pour plus d'informations