Double opportunité au centre du bourg : deux maisons à rénover avec jardin

— Juvigne 53380 —
66 000 €
116 m² / 274 m²
6 pièces
jardin

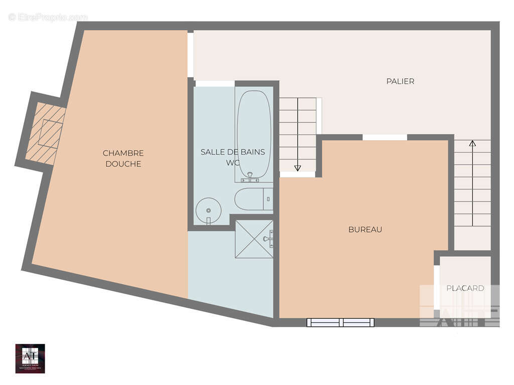
Situé au cœur du bourg, à proximité immédiate des commerces et commodités, cet ensemble immobilier se compose de deux maisons mitoyennes mais indépendantes, offrant de nombreuses possibilités : investissement locatif, projet familial ou pied-à-terre. La première maison, d’environ 79 m², s’étend sur trois niveaux. Elle comprend une pièce de vie chaleureuse avec poêle à bois, une cuisine ouverte et un WC au rez-de-chaussée, deux chambres à l’étage (dont une avec placard et l’autre avec douche), ainsi qu’une salle de bain avec WC sanibroyeur. Les combles ont été aménagés en mezzanine, idéale pour un bureau ou un espace nuit supplémentaire. Un petit espace extérieur vient compléter ce logement. La seconde maison, plus compacte (environ 37 m²), propose une pièce de vie avec coin cuisine au rez-de-chaussée, et à l’étage, une chambre avec douche et un WC séparé. Un terrain non attenant de 274 m², situé à quelques pas, complète l’ensemble : parfait pour créer un jardin, un potager ou un espace détente. Des travaux sont à prévoir, notamment au niveau des toitures. Ce bien représente une belle opportunité dans un secteur recherché, avec un fort potentiel de valorisation. Maison n° 8 - Non soumis au DPE. Maison n°10 - Classe énergie : G, Classe climat : C. Montant moyen estimé des dépenses annuelles d'énergie pour un usage standard, établi à partir des prix de l'énergie de l'année 2021, 2022 et 2023 : entre 2615 € et 3537 €. Logement à consommation énergétique excessive : classe G. Les informations sur les risques auxquels ce bien est exposé sont disponibles sur le site Géorisques : www.georisques.gouv.fr. Prix : 66.000€ / Honoraires à la charge du vendeur. Visite virtuelle disponible. Conformément à l'article L. 561-5 du code monétaire et financier, la copie de la pièce d'identité de tous les visiteurs vous sera demandée avant toute visite. Pour visiter et vous accompagner dans votre projet, contactez Mme Axelle MARILLEAU, négociatrice au [Coordonnées masquées] ou [Coordonnées masquées]. Plus d’informations sur notre site www.agencethom.fr
Voir plus

Référence: 1419
DPE
A
B
C
D
E
F
G
GES
A
B
C
D
E
F
G

Prêt immobilier

Vous souhaitez connaître votre capacité d’emprunt et trouver le meilleur crédit immobilier ?
Réaliser une simulation gratuite

Maison à JUVIGNE
Maison à JUVIGNE
Maison à JUVIGNE
Maison à JUVIGNE
Maison à JUVIGNE
Maison à JUVIGNE
Maison à JUVIGNE
Maison à JUVIGNE
Maison à JUVIGNE
Maison à JUVIGNE
Maison à JUVIGNE
Maison à JUVIGNE
Maison à JUVIGNE
Maison à JUVIGNE
Maison à JUVIGNE
Ce site est protégé par reCAPTCHA la Politique de confidentialité et les Conditions d’utilisation de Google s’appliquent.
Obtenir un prêt immobilier au meilleur taux ?

En poursuivant votre navigation sans modifier vos paramètres, vous acceptez l'utilisation de cookies susceptibles de réaliser des statistiques de visite. Cliquez ici pour plus d'informations