Bénéficiez des services de nos partenaires locaux soigneusement sélectionnés
pour vous accompagner dans votre parcours d'achat immobilier

Proche commerces - maison de plain-pied & garage

— Royan 17200 —
283 500 €
85 m² / 416 m²
4 pièces
jardin

Nos partenaires locaux
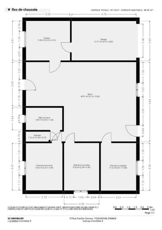
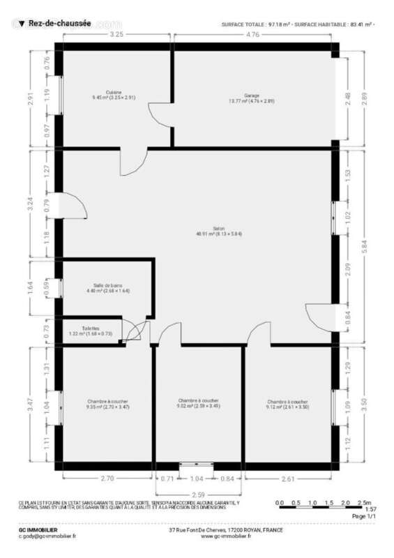
A seulement 900 m des commerces de proximité, au coeur d'un quartier résidentiel vivant toute l'année, GC IMMOBILIER vous présente cette maison de plain-pied édifiée sur un terrain clos de 416 m². D'une surface habitable de 85 m², elle se compose d'un séjour traversant ouvrant sur la terrasse, d'une cuisine indépendante, ainsi que de trois chambres, d'une salle de bains et d'un WC séparé. Un garage attenant avec galetas complète le bien. Des travaux de rénovation sont à prévoir, offrant ainsi un beau potentiel de personnalisation. Une opportunité idéale, que ce soit pour une résidence principale, un investissement locatif ou un pied-à-terre au calme. (5.00 % honoraires TTC à la charge de l'acquéreur.)
Voir plus

Référence: 164
Honoraires d'agence de 5% à la charge de l'acquéreur
Barème des honoraires
DPE
A
B
C
D
E
F
G
GES
A
B
C
D
E
F
G

Prêt immobilier

Vous souhaitez connaître votre capacité d’emprunt et trouver le meilleur crédit immobilier ?
Réaliser une simulation gratuite

Maison à ROYAN
Maison à ROYAN
Maison à ROYAN
Maison à ROYAN
Maison à ROYAN
Maison à ROYAN
Maison à ROYAN
Maison à ROYAN
Maison à ROYAN
Maison à ROYAN
Ce site est protégé par reCAPTCHA la Politique de confidentialité et les Conditions d’utilisation de Google s’appliquent.
Obtenir un prêt immobilier au meilleur taux ?

En poursuivant votre navigation sans modifier vos paramètres, vous acceptez l'utilisation de cookies susceptibles de réaliser des statistiques de visite. Cliquez ici pour plus d'informations